142a Longfield Lane

  • Ilkeston
  • DE7 4DB
  • Asking price

    £472,500
  • Bathrooms

    3

  • Bedrooms

    4

Description

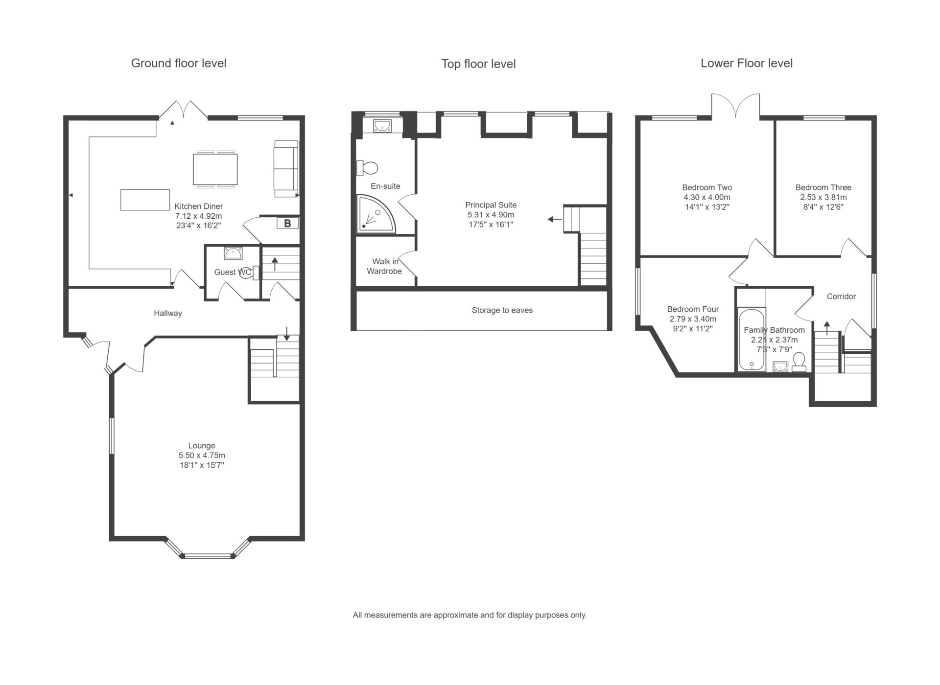
Hortons are delighted to bring to the market, this beautifully designed four bedroom detached home with a high degree of privacy and open elevated views to the rear, built in 2016, offers spacious and versatile accommodation arranged over three floors. Situated on a secluded plot, the property features a private dual driveway with space for two to three cars, a single semi-detached garage, and a car port. The ground floor comprises a welcoming lounge, a contemporary kitchen diner perfect for family gatherings, and a convenient guest WC. The upper floor is dedicated to the principal suite, complete with a walk-in wardrobe and a luxurious en-suite bathroom. On the lower floor, you will find three further well-proportioned bedrooms and a modern family bathroom. High specification fixtures and fittings are present throughout the property, ensuring a premium finish and comfortable living. The location is ideal for families, being within walking distance of good local schools, shops, doctors, and bus links. Excellent access to major commute routes, including the M1 and A52, makes this an ideal choice for those needing to travel further afield.

The outside space is equally impressive. To the front, a long hardstanding driveway for two to three cars leads to a a single semi-detached garage (measuring approximately 20'7" x 10'7") with an electric door operated by fob, a pitched roof for additional storage, power, and electric supply. There is a further single driveway to the right of the property with a car port, offering even more parking options. The front garden is attractively landscaped with Indian stone paved perimeter paths and walkways, fenced boundaries, and a secure gate providing access to the rear garden. The enclosed rear garden is perfect for both relaxing and entertaining, featuring a patio area ideal for outdoor seating, a well-maintained lawn bordered by mature plants and shrubbery, and beautiful elevated open views. Fencing surrounds the boundaries, ensuring privacy and security. This exceptional home combines stylish interiors with generous outside space, making it a superb opportunity for families and professionals alike.

Services:

All mains services are available and connected.

The property has mains gas central heating Property information:

Combination boiler - Gas central heating

Tenure: Freehold

Local Authority: Erewash Borough Council

Viewing information: Accompanied Viewings are available 7 days a week. Partner Agent - Nicole Beales

Important Information: Making An Offer - As part of our service to our Vendors we ensure that all potential buyers are in a position to proceed with any offer they make and would therefore ask any potential purchaser to speak with our Mortgage Advisor to discuss and establish how they intend to fund their purchase. Additionally we can offer Independent Financial Advice and are able to source mortgages from the whole of the market helping you secure the best possible deal and potentially saving you money. If you are making a cash offer we will ask you to confirm the source and availability of your funds in order for us to present your offer in the best possible light to our Vendor.

Property Particulars: Although we endeavour to ensure the accuracy of property details we have not tested any services heating plumbing equipment or apparatus fixtures or fittings and no guarantee can be given or implied that they are connected in working order or fit for purpose. We may not have had sight of legal documentation confirming tenure or other details and any references made are based upon information supplied in good faith by the Vendor.

Entrance Hall 21' 9" x 10' 0" (6.63m x 3.05m)
A composite door and double glazed windows to the front elevation, LVT wood flooring, underfloor heating with zone controller and an atrium style ceiling with an apex shaped double glazed window to the front elevation.

Guest WC 5' 2" x 5' 1" (1.57m x 1.55m)
Fitted with a two piece suite comprising of a close coupled WC and a pedestal wash hand basin, complementary luxury ceramic tiling to splashbacks and underfloor heating.

Lounge 18' 2" x 15' 7" (5.54m x 4.75m)
A spacious Lounge with a double glazed walk-in bay window to the front elevation, further double glazed window to the front elevation, wall lights with a matching centre ceiling light, luxury carpet flooring and underfloor heating.

Kitchen Diner 23' 5" x 16' 2" (7.14m x 4.93m)
Superbly appointed with a matching range of hi-gloss cream painted wall and base cabinets, deep soft close cupboards and drawers, a central island with a stainless steel sink unit inset to Corian worktops, two Bosch electric ovens, hob with extractor above, Neff dishwasher and Hotpoint automatic washing machine, integrated dryer, real oak flooring with underfloor heating with zone controller, spotlighting to the ceiling, fitted storage cupboard housing the boiler and underfloor heating control system, two double glazed windows and double glazed glazed french doors with a Juliet balcony to the rear elevation and ample space for a table and chairs / sofas.

Stairs to top floor
Doorway with staircase ascending to the top floor leading to the principal suite, which spans across the whole of this level.

Principal Bedroom 17' 7" x 16' 1" (5.36m x 4.90m)
This stunning Principal suite offers an extremely spacious bedroom with two walk in dorma double glazed windows to the rear elevation, air conditioning unit, spotlighting to the ceiling, radiators, eaves storage and access to the en-suite and the walk-in wardrobe. Walk-In Wardrobe 6'7" x 5'4" with power and light.

Principal En-suite 9' 1" x 5' 6" (2.77m x 1.68m)
Fitted with a white suite comprising of an oversized quadrant shower enclosure with a mains fed shower, vanity wash hand basin inset to vanity storage unit, close coupled wc, complementary luxury ceramic tiling to splashbacks and floor, chrome heated towel rail and a double glazed window to the rear elevation.

Stairs ascending to lower floor 15' 9" x 6' 7" (4.80m x 2.01m)
With carpet flooring, horizontal double glazed window, under stairs cupboard for storage and underfloor heating with zone controller.

Bathroom 7' 9" x 7' 4" (2.36m x 2.24m)
A stylish family bathroom has a raised panelled bath with mains shower over, a floating wash hand basin and wc, luxury ceramic tiling to the walls and floor, fitted shelving, spotlighting to the ceiling, LED foot lighting and underfloor heating.

Bedroom Three 12' 7" x 8' 6" (3.83m x 2.59m)
A great double bedroom, with carpet flooring, double glazed window to the rear elevation, underfloor heating and zone controller.

Bedroom Two 14' 2" x 13' 2" (4.32m x 4.01m)
A generous double bedroom, currently used as a fully functioning dual office with carpet flooring, double glazed window and French doors to rear elevation, underfloor heating with zone controller.

Bedroom Four 11' 5" x 8' 11" (3.48m x 2.72m)
Another great size bedroom with carpet flooring, horizontal double glazed window to the left elevation, underfloor heating with zone controller.

Disclaimer

In accordance with current legal requirements, all prospective purchasers are required to undergo an Anti-Money Laundering (AML) check. An administration fee of £40 per property will apply. This fee is payable after an offer has been accepted and must be settled before a memorandum of sale can be issued.

Floorplan

EPC

Need a mortgage?

We work with Mason Smalley, a 5-star rated mortgage brokerage with dedicated advisors handling everything on your behalf.

Can't find what you are looking for?

Speak with your local agent