Blackwood Place

  • Banbury
  • OX15 4BD
  • Asking price

    £350,000
  • Bathrooms

    2

  • Bedrooms

    3

Detached three-bedroom home in sought-after Bodicote. South-facing garden, garage, driveway, versatile layout, scope to modernise or extend (STPP). No chain.

Description

Offered to the market with no onward chain, this three-bedroom detached home occupies a generous plot with a south-facing garden and is located within the highly sought-after village of Bodicote.

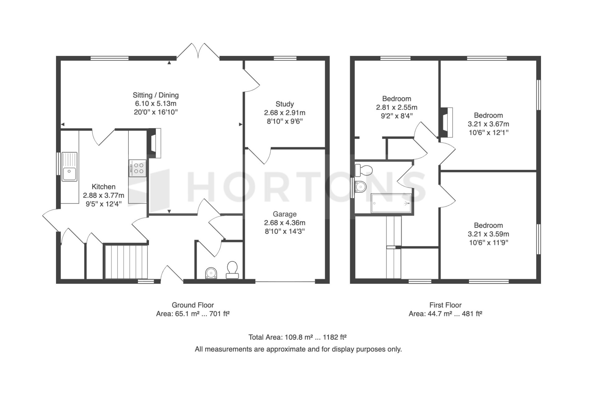
The accommodation is well-proportioned and versatile. To the ground floor is a spacious reception room, which could easily be utilised as an additional fourth bedroom if required, alongside the kitchen and further living space. Upstairs, the property offers three bedrooms and family bathroom facilities.

Externally, the home benefits from a garage and driveway parking, providing ample off-road parking. The south-facing rear garden enjoys excellent natural light and offers a fantastic opportunity for landscaping, entertaining, or future extension.

While the property is considered to be in reasonable condition, it is fair to say that it would benefit from a degree of modernisation throughout, making it an excellent opportunity for buyers to add value and truly put their own stamp on a home. There is significant potential to extend (subject to planning permission), with neighbouring properties having completed similar works.

The village of Bodicote is particularly popular due to its strong sense of community and excellent local amenities, all within walking distance, including:

  • Bannatyne Health Club & Spa

  • Two primary schools

  • Two public houses

  • Village shop and post office

  • Surrounded by beautiful Oxfordshire countryside with excellent walks

This is a rare opportunity to acquire a detached home in one of the area’s most desirable villages, offering space, flexibility, and long-term potential.

Disclaimer

In accordance with current legal requirements, all prospective purchasers are required to undergo an Anti-Money Laundering (AML) check. An administration fee of £40 per property will apply. This fee is payable after an offer has been accepted and must be settled before a memorandum of sale can be issued.

Floorplan

Need a mortgage?

We work with Mason Smalley, a 5-star rated mortgage brokerage with dedicated advisors handling everything on your behalf.

Can't find what you are looking for?

Speak with your local agent