• Asking price

    £315,000 OIRO
  • Bathrooms

    1

  • Bedrooms

    3

Spacious Three bed semi-detached property on Canterbury Drive, Marston Green, no upward chain. Immaculate, ideal for families. Features open plan lounge/dining, office space, kitchen, three bedrooms, shower room, w.c. South-facing garden, multi-vehicle driveway. Close to amenities, train station, and airport.

Description

An opportunity to purchase this, spacious, three bed semi detached property on the convenient Canterbury Drive, Marston Green, being sold with No Upward Chain. Immaculately presented throughout, a property that you could really make your own, ideal for those looking for a family home. In brief comprising, entrance porch, open plan lounge and dining room, garage conversion currently used as office space - providing versatility to meet your needs, kitchen with breakfast bar, three good sized bedrooms, shower room and separate w.c. Further benefitting from south facing rear garden, multi vehicle driveway, boarded loft and ample storage throughout. Conveniently located close to all local amenities Marston Green has to offer as well as being a stones throw from Marston Green Train Station, Birmingham International Train Station and Birmingham Airport, in close proximity to bus stops to Solihull and Birmingham and walking distance to the local primary school.

Viewing comes highly recommended.

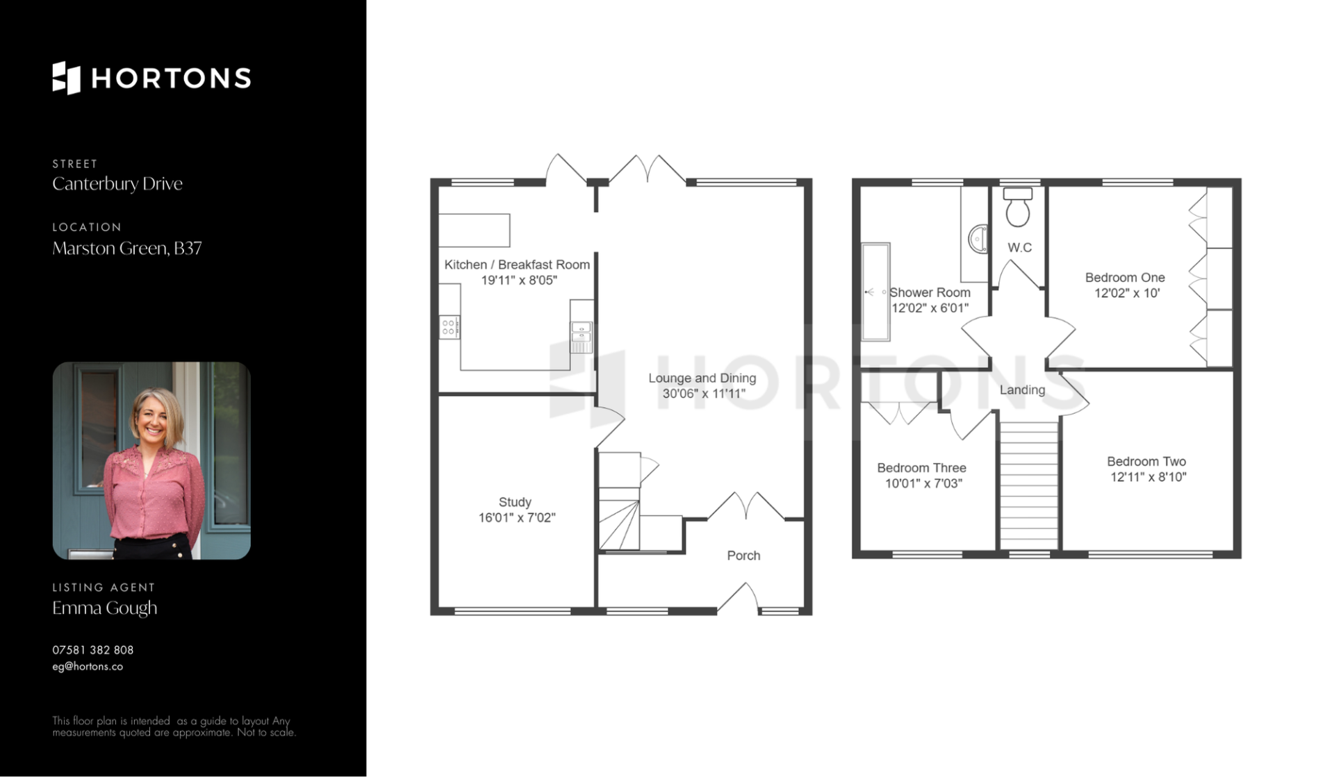
Porch
A spacious porch,having tiled flooring, a Upvc front door, windows over looking the front elevation, obscured window to the rear of the porch, light fitting to the ceiling and doors to the rear giving access to the lounge.

Lounge and Dining Room 30' 6" x 11' 11" (9.30m x 3.63m)
Having carpeted flooring, carpeted stairs leading to the first floor, under the stair storage, radiators, doors to the rear giving access to the garden, access to the rear giving access to the kitchen, light fittings to the wall and ceiling and door to the side giving access to study.

Office 16' 1" x 7' 2" (4.90m x 2.18m)
Garage conversion, which is a versatile space, possibilities as study, gym, family room, extra bedroom to suit your requirements. Having laminate flooring, cupboard for fuse board and electric meter, radiator, window over looking the front aspect, light fittings to the wall and ceiling.

Kitchen/Breakfast Area 19' 11" x 8' 5" (6.07m x 2.57m)
Having tiled flooring, a range of wall and base units with work surface over, benefitting from ample storage. Integrated appliances include, dishwasher, ironing board, washer/drier, fridge freezer, oven, wine cooler, microwave, electric hob with extractor hood over. Sink with drainer and mixer tap, light fitting to the ceiling, breakfast bar with convenient storage and built in electrical sockets, window over looking the rear aspect and door to the rear giving access to the garden.

Landing
Having carpeted storage, obscured window to the front, light fitting to the ceiling, access to loft, and doors giving access to three good sized bedrooms, shower room and separate w.c.

Bedroom One 12' 2" x 10' 0" (3.71m x 3.05m)
Having laminate flooring, fitted wardrobes, radiator, window to the rear elevation and light fitting to the ceiling.

Bedroom Two 12' 10" x 8' 10" (3.91m x 2.69m)
Having laminate flooring, radiator, window to the front elevation, and light fitting to the ceiling.

Bedroom Three 10' 1" x 7' 3" (3.07m x 2.21m)
Having laminate flooring, built in wardrobes, radiator, window to the front elevation and light fitting to the ceiling.

W.C
Having tiled walls, low level flush w.c, obscured window to the rear and light fitting to the ceiling.

Shower Room 12' 2" x 6' 1" (3.71m x 1.85m)
Having laminate flooring and tiled walls, double shower cubicle with screen, storage space behind the shower ,heated ladder style towel rail, built in vanity unit with hand wash basin and mixer tap, obscured window to the rear elevation, light fittings to the ceiling.

Disclaimer
In accordance with current legal requirements, all prospective purchasers are required to undergo an Anti-Money Laundering (AML) check. An administration fee of £40 per property will apply. This fee is payable after an offer has been accepted and must be settled before a memorandum of sale can be issued.

The measurements indicated are supplied for guidance and illustration purposes only and may be incorrect. Potential buyers are advised to re check measurements for clarity. Hortons have not tested any apparatus, equipment, fixtures and fittings and potential buyers are advised to check the condition of any appliances and discuss with their legal representative. It is advised to seek legal advice on all concerns surrounding the title, boundaries and other related matters.

Floorplan

EPC

Need a mortgage?

We work with Mason Smalley, a 5-star rated mortgage brokerage with dedicated advisors handling everything on your behalf.

Can't find what you are looking for?

Speak with your local agent