Plot 4 Vineyard Close

  • Borrowash
  • DE72 3HG
  • Asking price

    £750,000 OIRO
  • Bathrooms

    2

  • Bedrooms

    5

Exceptional new build five bedroom detached home in a private gated cul de sac. High spec, flexible layout, luxury master suite, private garden, garage. Completion November/December 2026.

Description

This exceptional five bedroom detached family home presents a rare opportunity to secure a new build residence in a desirable cul de sac location. Designed and constructed to a high specification, the property offers flexible accommodation across two generous floors, with the option for either four or five bedrooms depending on your requirements. The master suite is a true retreat, featuring a luxurious en-suite bathroom and a spacious dressing room. The kitchen, crafted by Victoria Roberts, combines contemporary style with practical functionality, while bathrooms from Willbonds ensure a sophisticated finish throughout. The home is ideally positioned for commuters, with excellent transport links to the M1, A50 and A52, making travel to nearby cities straightforward. For those who enjoy the outdoors, the property is also close to scenic countryside walks, providing an ideal balance between urban convenience and rural tranquillity. The build is anticipated to be completed by November/December 2026, allowing you to plan your move to a pristine, energy-efficient home tailored to modern family living. Off road parking and a garage offer further practicality for busy households.

The outside space has been thoughtfully designed to complement the stylish interior, offering a private garden that is perfect for both relaxation and entertaining. The garden provides ample room for children to play, as well as space for al fresco dining or summer gatherings with family and friends. The driveway offers additional off road parking, leading directly to the integral garage, which provides secure storage for vehicles, bikes or outdoor equipment. Whether you are seeking a peaceful spot to unwind after a busy day or a versatile space for hosting guests, the outside area caters to a variety of lifestyles. With the convenience of low maintenance landscaping and the benefit of a new build warranty, you can enjoy your outdoor space with complete peace of mind. This property truly offers a complete package for families looking for a blend of style, comfort and practicality, both inside and out.

Tenure - Freehold
Partner Emma Cavers

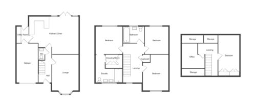
Entrance Hall
Front entrance door and access to WC, Lounge and Dining Kitchen

WC
Low flush WC, sink

Lounge
Bay window to the front

Living/Dining/Kitchen
There will be designated areas for a living space, dining space and then the kitchen with built-in appliances. Patio doors to the rear garden.

Utilty Room
Door to the garden and door to the garage.

Landing
Door to an airing cupboard and doors to bedrooms and bathrooms

Master Bedroom
Window to the rear and door to dressing area and en-suite

Dressing Room

En-suite

Bedroom Two

Bedroom Three

Bathroom

Second Floor Landing
Door to storage cupboard

Bedroom
Built-in wradrobes

Bedroom Five/Office

Disclaimer
In accordance with current legal requirements, all prospective purchasers are required to undergo an Anti-Money Laundering (AML) check. An administration fee of £40 per property will apply. This fee is payable after an offer has been accepted and must be settled before a memorandum of sale can be issued.

Disclaimer

In accordance with current legal requirements, all prospective purchasers are required to undergo an Anti-Money Laundering (AML) check. An administration fee of £40 per property will apply. This fee is payable after an offer has been accepted and must be settled before a memorandum of sale can be issued.

Floorplan

Need a mortgage?

We work with Mason Smalley, a 5-star rated mortgage brokerage with dedicated advisors handling everything on your behalf.

Can't find what you are looking for?

Speak with your local agent