• Asking price

    £290,000 OIRO
  • Bathrooms

    1

  • Bedrooms

    3

Immaculate Victorian 3-bed semi-detached cottage in central village location. Features log burner, modern upgrades, serene garden with summer house. Nearby amenities & good transport links.

Description

Nestled within a central village location, this immaculate Victorian three-bedroom semi-detached cottage built in 1880's, offers a perfect blend of character and modern living. The property boasts a warm and inviting ambience with features such as a log burner in the lounge, gas central heating with a newly installed boiler, and double glazing throughout. With three reception rooms, a utility room, and a downstairs WC, this home effortlessly accommodates a variety of lifestyles. The cottage offers two main entrance ways, the front door is off the street and a second side door is accessed via a side passage way. Viewing appointments are available seven days a week offering the chance to experience this charming property firsthand.

Outside, a gate from the main road grants access to a passageway leading to the serene garden space. The immediate surroundings feature a delightful patio area leading to an aesthetically pleasing astroturf lawn, bordered by gravel filled with an array of shrubs and flowers. Following the path to the right, one discovers a well-appointed summer house measuring 11'9 x 8'9 complete with a bar, light, and power supply and UPVC double glazed patio doors. This private sanctuary is encased by fence and wall boundaries ensuring privacy and tranquillity. While off-road parking is not available at the cottage, ample parking options are conveniently situated in close proximity on Church View and in the village square. Experience a harmonious blend of comfort, style, and convenience in this remarkable village retreat.

Breaston is a very popular village being within easy reach of the local shops and schools for younger and older children. Nearby are Long Eaton & Sandiacre towns where you can find ASDA, Tesco, Lidl and Aldi superstores along with numerous other retail outlets such as health care centers and sports facilities. There are walks in the surrounding picturesque countryside along with excellent transport links including J25 of the M1, East Midlands Airport, Long Eaton & East Midlands Parkway stations and the A52 to Nottingham & Derby.

Tenure - Freehold
Council Tax Band - B
Partner - Emma Cavers

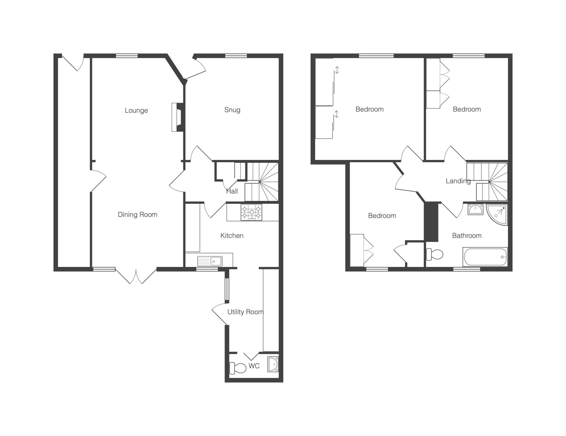
Entrance Hall/Snug 10' 7" x 11' 5" (3.23m x 3.48m)
Composite front entrance door, UPVC double glazed window with internal shutters, meter cupboard, laminate floor, radiator and door to inner hallway.

Inner Hallway
Stairs to the first floor landing, door to understairs storage cupboard, radiator, solid wood floor, dado rail and doors to

Lounge 12' 6" x 9' 8" (3.81m x 2.95m)
UPVC double glazed windows x2 with internal shutters, exposed chimney breast with log burner and tiled hearth and open to

Dining Room 10' 6" x 12' 0" (3.20m x 3.66m)
UPVC double;e glazed patio doors and window to the garden, radiator and door to the alley way.

Kitchen 10' 6" x 7' 7" (3.20m x 2.31m)
Wall, base and drawer units with work surface over, inset sink and drainer unit with swan mixer tap over, tiled walls and splashbacks, UPVC double glazed window, space for a range cooker, spotlights, plumbing for a dishwasher, built-in fridge, laminate floor and open to

Utility Room 9' 4" x 5' 2" (2.84m x 1.57m)
Wall and base units with work surface over, built-in freezer, plumbing for automatic washing machine, UPVC double glazed windows and rear exit door and door to

WC
Low flush w.c, sink with tiled splashbacks.

Landing
access to the loft with a pull down ladder which is boarded, sky light, radiator and doors to

Bedroom One 10' 10" x 12' 7" (3.30m x 3.84m)
UPVC double glazed window to the front with internal shutters, built-in wardrobes, radiator.

Bedroom Two 9' 7" x 11' 0" (2.92m x 3.35m)
UPVC double glazed windows to the rear, built-in wardrobe, storage cupboard housing the gas central heating boiler.

Bedroom Three 9' 9" x 11' 5" (2.97m x 3.48m)
UPVC double glazed window to the front with internal shutter, built-in wardrobe and drawer, radiator, coving to the ceiling.

Bathroom
A four peice suite comprising a panelled bath with a mixer tap and hand held shower, walk-in shower cubicle with shower from the mains, low flush w.c, sink with storage, tiled walls and splashbacks, radiator, spotlights, radiator, UPVC double glazed window to the rear.

Disclaimer
In accordance with current legal requirements, all prospective purchasers are required to undergo an Anti-Money Laundering (AML) check. An administration fee of £40 per property will apply. This fee is payable after an offer has been accepted and must be settled before a memorandum of sale can be issued.

Floorplan

Need a mortgage?

We work with Mason Smalley, a 5-star rated mortgage brokerage with dedicated advisors handling everything on your behalf.

Can't find what you are looking for?

Speak with your local agent