• Asking price

    £650,000 Guide Price
  • Bathrooms

    2

  • Bedrooms

    4

PRICE GUIDE £650-675,000 A family home in Draycott village on an a large plot. Three receptions, large kitchen, utility, double garage. Four bedrooms, 4-piece bathroom. Driveway, wraparound garden, views. Village amenities, schools nearby.

Description

PRICE GUIDE £650,000 - 675,000

This property is making its debut on the open market for the very first time. Built by the current family owners in 1977 on a generous plot, it's now ready for its next family to call it home. With its impressive size, there is still ample opportunity to extend the property if desired, with gardens wrapping around all sides.

Upon stepping through the front door, you're welcomed by a spacious hallway leading to a well-appointed kitchen, complete with a large utility room and access to the double garage. The ground floor also features a convenient shower room, pantry, and three reception rooms.

Outside you have a driveway offering parking for several vehicles and a wrap around garden.

Draycott village offers local shops, schools for younger children, and further shopping options in nearby villages like Breaston, Borrowash, and Sawley. Long Eaton, is a short drive away, providing access to supermarkets and well appointed schools such as Trent College. Healthcare and sports facilities, including golf courses and countryside walks, are available. Excellent transport links include J25 of the M1, East Midlands Airport, and nearby train stations with easy access to Nottingham, Derby, and other East Midlands towns and cities via the A52 and other main roads.

Upstairs, a sizeble landing flooded with natural light from a large window guides you to the bedrooms all with built-in wardrobes and a family bathroom boasting a four-piece suite.

Situated at the head of a cul-de-sac, the property occupies approximately a quarter of an acre, offering breathtaking and uninterrupted views of the fields, with the added bonus of a south-facing aspect.

Tenure:

Freehold

Local Authority:

Erewash Borough Council

Council tax band E (£2,634)

Viewing information:

Accompanied Viewings are available 7 days a week.

Partner Agent - Emma Cavers

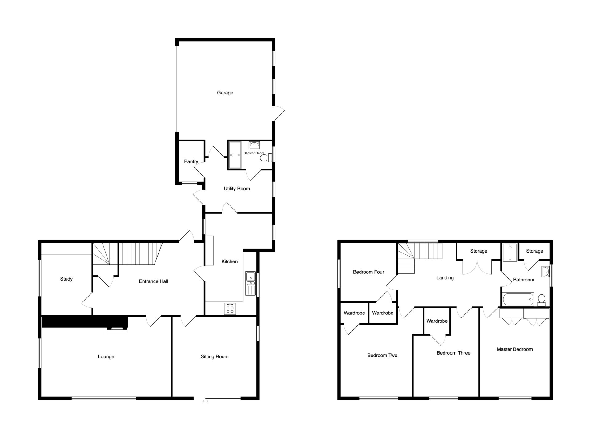
Entrance Hall
Front entrance door, stairs t the first floor landing, door to a large under stairs storage cupboard, UPVC double glazed window to the front, x2 radiators and doors to

Sitting Room 12' 0" x 13' 3" (3.66m x 4.04m)
UPVC double glazed sliding door to the rear, UPVC double glazed window to the side, TV point and radiator.

Lounge 19' 3" x 13' 5" (5.87m x 4.09m)
UPVC double glazed window to the rear, brick chimney breast, radiator, TV point

Study 8' 9" x 11' 5" (2.67m x 3.48m)
UPVC double glazed window to the side, built in cupboards and desk, radiator

Kitchen 16' 4" x 8' 4" (4.98m x 2.54m)
Wall, base and drawer units with work surface over, stainless sink, waste and drainer unit with mixer tap over, tiled walls and splashbacks, built-in fridge and dishwasher, built-in cooked, gas hob and extractor hood over, tiled floor, UPVC double glazed window x2 to the rear and one to the front elevation, x2 radiators and door to

Utility Room 6' 8" x 10' 9" (2.03m x 3.28m)
UPVC double glazed window to the rear, door to the front elevation, door to a large pantry, tiled floor, gas central heating boiler, door to the garage and door to

Shower Room 7' 3" x 3' 7" (2.21m x 1.09m)
Walk-in shower cubicle with shower from the mains, low flush w.c, pedestal wash hand basin, fully tiled walls and splahbacks, tiled floor, chrome heated towel rail and UPVC double glazed window to the side

Garage 16' 0" x 15' 2" (4.88m x 4.62m)
Up and over electric door to the front, UPVC double glazed windows and door to the side

Landing
Access to the loft, doors to a large storage cupboard and doors to

Master Bedroom 13' 3" x 16' 11" (4.04m x 5.16m)
UPVC double glazed window to the rear, built-in wardrobes, radiator

Bedroom Two 12' 5" x 13' 4" (3.78m x 4.06m)
UPVC double glazed window to the rear, built-in wardrobe, radiator

Bedroom Three 13' 3" x 8' 9" (4.04m x 2.67m)
UPVC double glazed window to the rear, built-in wardrobe, radiator

Bedroom Four 9' 5" x 9' 0" (2.87m x 2.74m)
UPVC double glazed window to the side, built-in wardrobe, radiator

Bathroom
A four piece suite comprising a walk-in shower cubicle with shower from the mains, bath, low flush w.c, and sink with storage underneath, airing cupboard, tiled walls and splashbacks, UPVC double glazed window and radiator

Disclaimer
In accordance with current legal requirements, all prospective purchasers are required to undergo an Anti-Money Laundering (AML) check. An administration fee of £40 per property will apply. This fee is payable after an offer has been accepted and must be settled before a memorandum of sale can be issued.

Floorplan

Need a mortgage?

We work with Mason Smalley, a 5-star rated mortgage brokerage with dedicated advisors handling everything on your behalf.

Can't find what you are looking for?

Speak with your local agent