Land Adj, 140 Derby Road

  • Derbyshire
  • DE7 6EX
  • Asking price

    £200,000 Offers Over
  • Bedrooms

    3

Description

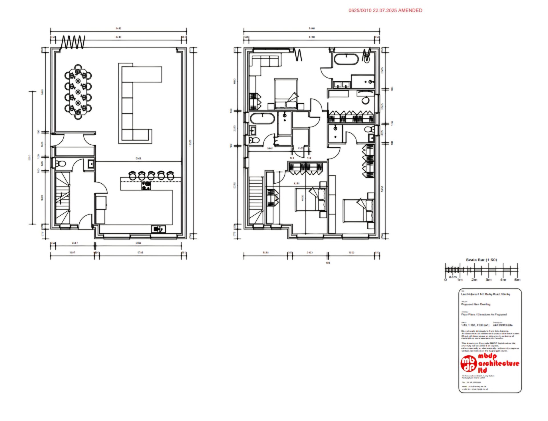
Description - A fantastic opportunity to acquire a good-sized building plot in rural village location, with planning permission for a three bedroom detached home with ample parking for multiple cars with stunning open views to the rear.

Location - The plot is situated in this desirable Derbyshire village location, yet remaining within easy reach of nearby amenities and transport links, including Ilkeston train station, also fantastic neighbouring towns and villages including West Hallam, Morley, Breadsall and Oakwood to name a few . There is also easy access to the nearby cities of Nottingham and Derby which provide a wide variety of both national and independent retailers. The property is situated within easy reach of fantastic nearby walks and open countryside, making this an ideal family property. Within the village itself, there is also easy access to popular nearby schooling and children's play park.

Services - We believe services are within the vicinity, however interested parties should make their own enquiries.

Planning Permission - The site has planning permission, granted by Erewash borough council for a three bedroom detached home with ample parking area for multiple cars.

Permission granted Ref; ERE/0625/0010

All copies are available upon request, or via the Local Planning Authority website.

Tenure And Possession - The land is sold freehold, with vacant possession upon completion.

Viewing - The land may be viewed at any reasonable time when in possession of a copy of these particulars. Please park carefully.

Method Of Sale - This property is to be sold by private treaty.

Disclaimer
In accordance with current legal requirements, all prospective purchasers are required to undergo an Anti-Money Laundering (AML) check. An administration fee of £40 per property will apply. This fee is payable after an offer has been accepted and must be settled before a memorandum of sale can be issued.

Disclaimer

In accordance with current legal requirements, all prospective purchasers are required to undergo an Anti-Money Laundering (AML) check. An administration fee of £40 per property will apply. This fee is payable after an offer has been accepted and must be settled before a memorandum of sale can be issued.

Need a mortgage?

We work with Mason Smalley, a 5-star rated mortgage brokerage with dedicated advisors handling everything on your behalf.

Can't find what you are looking for?

Speak with your local agent