-
Asking price
£160,000 Guide Price -
Bathrooms
1
-
Bedrooms
2
Description
This charming mid-terraced home presents a fantastic opportunity for those seeking a desirable residence in the heart of Kirk Hallam. Featuring two double bedrooms, this much-loved home is awaiting a personal touch, making it an ideal project for someone looking to upgrade internally. The property boasts a hardstanding driveway for two cars, an updated double glazing system, and a combination boiler, ensuring modern convenience for its new owners. The breakfast kitchen and lounge offer comfortable living spaces, while the low maintenance rear garden, complete with a brick-built outbuilding, provides a peaceful retreat for outdoor relaxation. Located within walking distance to local schools, shops, and bus links, this property also offers great access to commute links, with the train station just 2 miles away. With no upward chain, this home is ready to welcome its next owners into a warm and inviting space.
Outside, the property features a hardstanding driveway to the front, providing parking for two cars and a secure boundary with a surrounding fence. The rear of the house offers a low maintenance garden with a mature selection of plants and shrubbery, creating a tranquil environment to unwind. Additionally, a brick-built outer building houses a convenient WC and storage space, enhancing the functionality and appeal of the outdoor area. The hardstanding driveway at the rear of the property offers further parking options, adding to the practicality of the space. Whether enjoying the peaceful garden oasis or utilising the ample off-road parking, the outdoor spaces of this property complement the comfortable interiors, ensuring a harmonious blend of style and functionality for the lucky new owners.
Services:
All mains services are available and connected.
The property has mains gas central heating Property information:
Combination boiler - Gas central heating
Tenure: Freehold
Viewing information: Accompanied Viewings are available 7 days a week. Partner Agent - Nicole Beales on 07561100839
Important Information: Making An Offer - As part of our service to our Vendors we ensure that all potential buyers are in a position to proceed with any offer they make and would therefore ask any potential purchaser to speak with our Mortgage Advisor to discuss and establish how they intend to fund their purchase. Additionally we can offer Independent Financial Advice and are able to source mortgages from the whole of the market helping you secure the best possible deal and potentially saving you money. If you are making a cash offer we will ask you to confirm the source and availability of your funds in order for us to present your offer in the best possible light to our Vendor.
Property Particulars: Although we endeavour to ensure the accuracy of property details we have not tested any services heating plumbing equipment or apparatus fixtures or fittings and no guarantee can be given or implied that they are connected in working order or fit for purpose. We may not have had sight of legal documentation confirming tenure or other details and any references made are based upon information supplied in good faith by the Vendor.
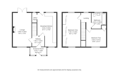
Entrance porch 8' 6" x 4' 0" (2.59m x 1.22m)
Double glazed windows to the front and sides and double glazed door to enter, tiled flooring and door to the entrance hallway.
Hallway 6' 1" x 5' 4" (1.85m x 1.63m)
With carpet flooring, radiator, electric metre housed away in a cupboard, and consumer box, stairs ascending and doors to lounge and kitchen.
Lounge 17' 5" x 9' 9" (5.31m x 2.97m)
Double glazed window to the front elevation, and double glazed patio doors to the rear elevation, chimney breast, with electric feature fire, recess alcove the side, radiator and carpet flooring.
Breakfast Kitchen 17' 5" x 9' 1" (5.31m x 2.77m)
A range of wall and base units, square top works surfaces, tiled splashbacks, sink and drainer with mixer tap, space for free standing oven fridge freezer, radiator, double glazed windows to the front and rear elevation and double glazed door also to the rear, under stairs storage and area for washing machine and dryer also housing the wall mounted combination boiler.
Stairs and landing 6' 7" x 3' 4" (2.01m x 1.02m)
6'7" x by 3'4" L shaped to 7'5" x 2'9" Double glazed window to the rear elevation, carpet flooring, radiator doors two bedrooms and bathroom
Bedroom One 17' 5" x 9' 5" (5.31m x 2.87m)
A great size double bedroom with dual aspect double glazed windows to front and rear elevations, carpet flooring, fitted wardrobes along one wall, radiator.
Bathroom 8' 5" x 7' 7" (2.57m x 2.31m)
White three-piece bathroom suite comprising panelled Bath with shower over, tiled walls, pedestal wash hand Basin, WC, opaque double glazed window to the rear elevation and radiator.
Bedroom Two 10' 6" x 10' 1" (3.20m x 3.07m)
Another double bedroom with double glazed window to the front elevation, radiator, built-in wardrobe and carpet flooring.
Disclaimer
In accordance with current legal requirements, all prospective purchasers are required to undergo an Anti-Money Laundering (AML) check. An administration fee of £40 per property will apply. This fee is payable after an offer has been accepted and must be settled before a memorandum of sale can be issued.
Need a mortgage?
We work with Mason Smalley, a 5-star rated mortgage brokerage with dedicated advisors handling everything on your behalf.
Can't find what you are looking for?
Speak with your local agent