-
Asking price
£563,500 OIRO -
Bathrooms
3
-
Bedrooms
4
Description
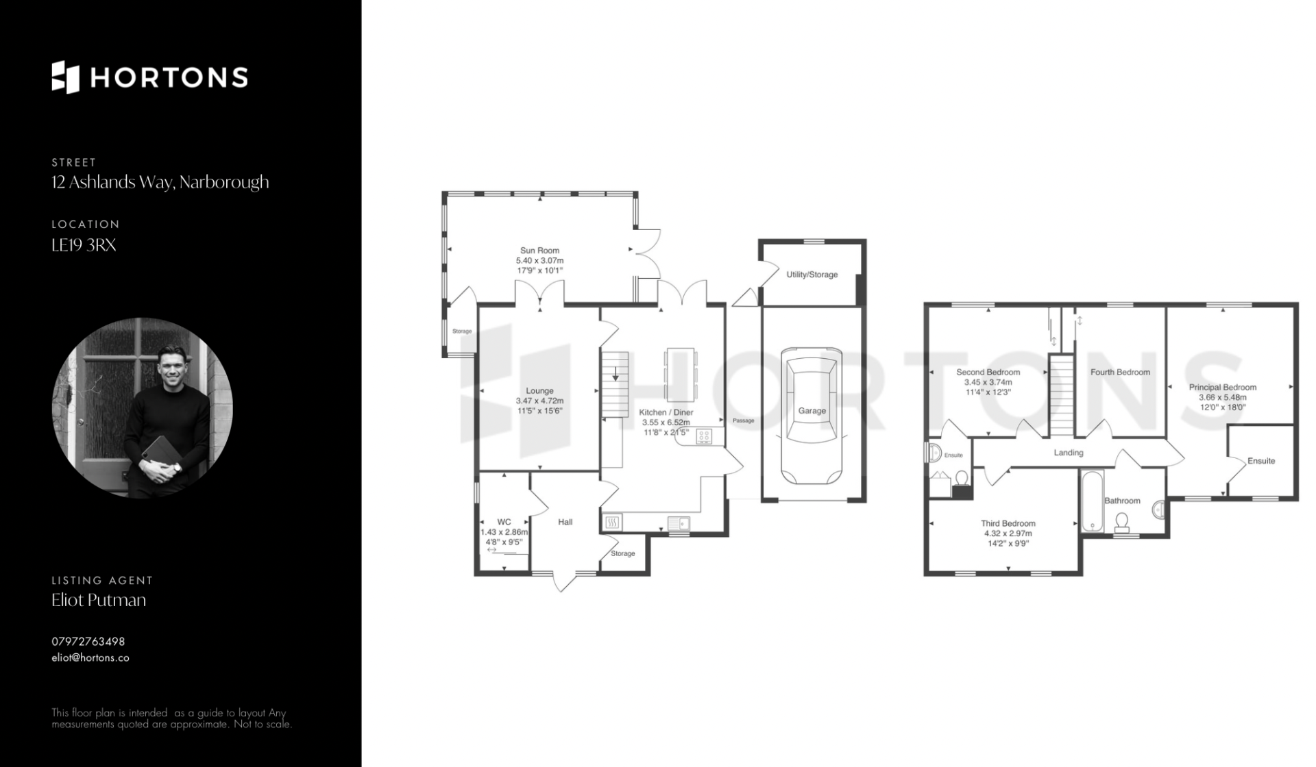
Set proudly at the head of a private cul-de-sac, Ashlands Way is a substantial executive detached house offering generous proportions and tasteful decor. Surrounded by bungalows, the house enjoys a rare sense of privacy and distinction, its elevated position lending both outlook and curb appeal within the street.
The house opens into an entrance hall, where storage and a well-appointed ground-floor WC are neatly included. From here, the home opens towards the heart of the home: a contemporary kitchen and dining space designed for modern family life. Floor and wall units are anchored by a central breakfast bar, while double doors open directly onto the rear garden, establishing a seamless relationship between inside and out. A side door leads to a useful external passage, enhancing day-to-day practicality.
Beyond the kitchen, the formal sitting room is generous in scale, centred around a feature fireplace. Double doors connect this space to a large sun room, an adaptable, light-filled room that extends the living accommodation and offers further storage and direct access to the garden - suited to family life and summer gatherings.
Upstairs, a long landing serves four well-proportioned bedrooms. The principal bedroom spans the full depth of the house, its scale lending a sense of calm luxury, complemented by a modern en-suite positioned to the front. The opposite end of the landing, the second bedroom to the rear also benefits from its own en-suite and fitted wardrobes. Between them lies the third bedroom, formerly two separate rooms, now opened up to create an expansive and flexible space. The fourth bedroom is another comfortable double with fitted wardrobes, while the family bathroom is finished in a clean, contemporary style.
The house is presented as a true turnkey home, carefully maintained and ready for a new family.
Outside, the rear garden has been designed with ease and longevity in mind, combining porcelain slabs with artificial lawn to create a clean, modern setting. The garage is spacious and incorporates a separate utility room to the rear, adding further functionality. To the front, a well-kept garden and driveway complete the approach, reinforcing the sense of arrival, with the porcelain slabs being a common feature. With its unique position, generous footprint and confident architectural presence, Ashlands Way stands as a defining home within the cul-de-sac.
Disclaimer
In accordance with current legal requirements, all prospective purchasers are required to undergo an Anti-Money Laundering (AML) check. An administration fee of £40 per property will apply. This fee is payable after an offer has been accepted and must be settled before a memorandum of sale can be issued.
Disclaimer
In accordance with current legal requirements, all prospective purchasers are required to undergo an Anti-Money Laundering (AML) check. An administration fee of £40 per property will apply. This fee is payable after an offer has been accepted and must be settled before a memorandum of sale can be issued.Need a mortgage?
We work with Mason Smalley, a 5-star rated mortgage brokerage with dedicated advisors handling everything on your behalf.
Can't find what you are looking for?
Speak with your local agent