• Asking price

    £420,000
  • Bathrooms

    1

  • Bedrooms

    3

Welcome to 'The Cottage' - once an ancillary building to Scraptoft Hall, now a charming characterful home. With three bedrooms and a spacious kitchen dining room, it offers tranquility in a blend of history and modern comfort.

Description

Discover the allure of The Cottage, an extraordinary transformation of a former ancillary building to Scraptoft Hall. This remarkable character home, nestled in serene surroundings, unveils a harmonious blend of history and modernity. Boasting three bedrooms and a spacious kitchen dining room, The Cottage invites you into a world where charm meets contemporary comfort.

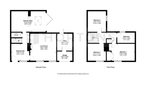
Entrance Hall – 10’10” x 10’3” (3.30m x 3.12m)

As you step through the front door, the large and inviting entrance hall sets the tone of this impressive home with its oak flooring. A convenient W.C. door is nestled under the stairs, leading to the first-floor landing.

Living Room

On the right side of the entrance hall, the living room invites you in. A solitary beam gracefully spans the width of the ceiling, subtly nodding to the home's rich history. Nestled within an exposed brick chimney breast, a wood-burning stove adds warmth and a delightful arched window bathes the room in natural light, crafting an inviting space with a cosy, relaxed ambiance.

Kitchen Dining Room

At the rear of the entrance hall, an entrance unfolds into the heart of the home—the kitchen dining room. This modern culinary haven boasts contemporary high gloss, white cupboards and drawers, complemented by sleek black granite worktops. Equipped with a range of modern appliances, including an induction hob, electric oven, combination oven, dishwasher, washing machine, and fridge & freezer, the kitchen is as practical as it is stylish. The dining area, adorned with an exposed brick wall, welcomes ample natural light through a roof light window. Opening up to the courtyard with bi-folding doors, it transforms into a vibrant social space, especially in the summer months. The kitchen dining room encapsulates modern living with a touch of rustic charm, creating a perfect setting for both everyday life and entertaining guests.

Upstairs Retreat

Ascend the staircase to the first-floor landing, unveiling a serene haven comprising three double bedrooms. The principal bedroom, with its garden-facing view and fitted wardrobes, seamlessly blends style and functionality. Accompanying this retreat, two additional double bedrooms await, offering versatility and comfort. The luxuriously appointed bathroom serves as a sanctuary, featuring a central tap bath, a low flush toilet, a spacious corner shower cubicle with a Grohe shower, a modern vanity sink, and a towel radiator. This upper retreat exudes tranquillity, providing a peaceful escape within the heart of The Cottage.

Outside the home

To the front of the property, a block-paved driveway welcomes two vehicles, leading to the garage. An enclosed lawned garden, adorned with planted borders and a pathway, creates an inviting approach to the front door. Venture to the rear, accessed from the kitchen, and you'll find a flagstone courtyard—an intimate outdoor retreat. Enclosed by a high walled boundary, the courtyard offers privacy and charm. Complete with an outside tap and electricity point, it's a versatile space perfect for al fresco moments. A stable door at the rear of the garage unveils an additional surprise—a wonderful home office and lofted storage. Perfect for busy individuals working from home.

Local Historical & Development Insight:

Dating back to 1723, Scraptoft Hall stands as a testament to historical grandeur envisioned and built by local MP James Wigley. This Grade II* Listed Country Manor House boasts architectural excellence, showcasing the finest examples of Georgian Hall architecture in the country. The ornamental lake and gardens, artfully designed in the mid-18th Century, enhance the picturesque setting.

The hall's ambiance is complemented by Scraptoft Church, a Grade I Listed Building, and the 'Claire-Voie'—an architectural feature safeguarding the westward view through iconic screen gates. Meticulously restored by GS Developments, the Hall now hosts seven distinctive one and two-bedroom apartments, a sprawling penthouse on the upper floor, and a converted music room wing offering views of the historic southern lawns.

The former stables and courtyard area have been transformed into six converted homes —all thoughtfully designed with parking and garaging. Passing through the arch of The Coach House reveals five additional homes (of which The Cottage is one of), nestled around the historic pond adjacent to the former forge.

Residents, including those in The Cottage, are granted access to the adjoining gardens and the tranquil lake, adding a touch of natural serenity to this historic enclave.

The Finer Details.

Tenure – Freehold

Energy Rating – C

Council Tax Band - E

Estate Management Charges - Approx £40 pcm*

Mains Services - Gas, Water, Electricty, Drainage

Approx. year of build – originally around 1830 but converted in 2015.

The property is not a listed building.

*Estate management charges to be confirmed by solicitors on conveyance.

Disclaimer
In accordance with current legal requirements, all prospective purchasers are required to undergo an Anti-Money Laundering (AML) check. An administration fee of £40 per property will apply. This fee is payable after an offer has been accepted and must be settled before a memorandum of sale can be issued.

Floorplan

Need a mortgage?

We work with Mason Smalley, a 5-star rated mortgage brokerage with dedicated advisors handling everything on your behalf.

Can't find what you are looking for?

Speak with your local agent