• Asking price

    £400,000 Offers in Excess
  • Bathrooms

    2

  • Bedrooms

    4

Daniel Cassidy

Daniel Cassidy

Head of Investments & Developments

Nestled in Thurnby village, this 4-bed detached house offers renovation potential. 2300 sq ft, elevated position with countryside views. Ample outdoor space, triple-sized garage. Ideal blend of tranquillity & convenience.

Description

Nestled in the highly desirable Thurnby village, this remarkable 4-bedroom detached house offers a once-in-a-lifetime opportunity to create the ultimate family abode. In need of modernisation throughout, this property boasts an impressive 2300 square feet of space and a layout that presents endless possibilities for renovation. From the moment you step inside, you are greeted by the potential to craft a home perfectly tailored to your taste. The property is ideally situated in an elevated position, providing breathtaking views of the serene open countryside, setting the scene for a truly idyllic lifestyle. Within easy reach of local amenities and within walking distance of everything you could need, this location offers the perfect blend of tranquillity and convenience.

The charm of this property extends beyond its interiors, with ample outdoor space that invites you to embrace the beauty of nature right at your doorstep. Enjoy the privacy and seclusion of the lush garden as you soak in the fresh air and bask in the natural surroundings. The spacious triple-sized integral garage offers ample room for parking and storage, catering to all your practical needs. The potential for landscaping and creating your own outdoor oasis is boundless in this plot, providing a blank canvas for your imagination to run wild.

Disclaimer
In accordance with current legal requirements, all prospective purchasers are required to undergo an Anti-Money Laundering (AML) check. An administration fee of £40 per property will apply. This fee is payable after an offer has been accepted and must be settled before a memorandum of sale can be issued.

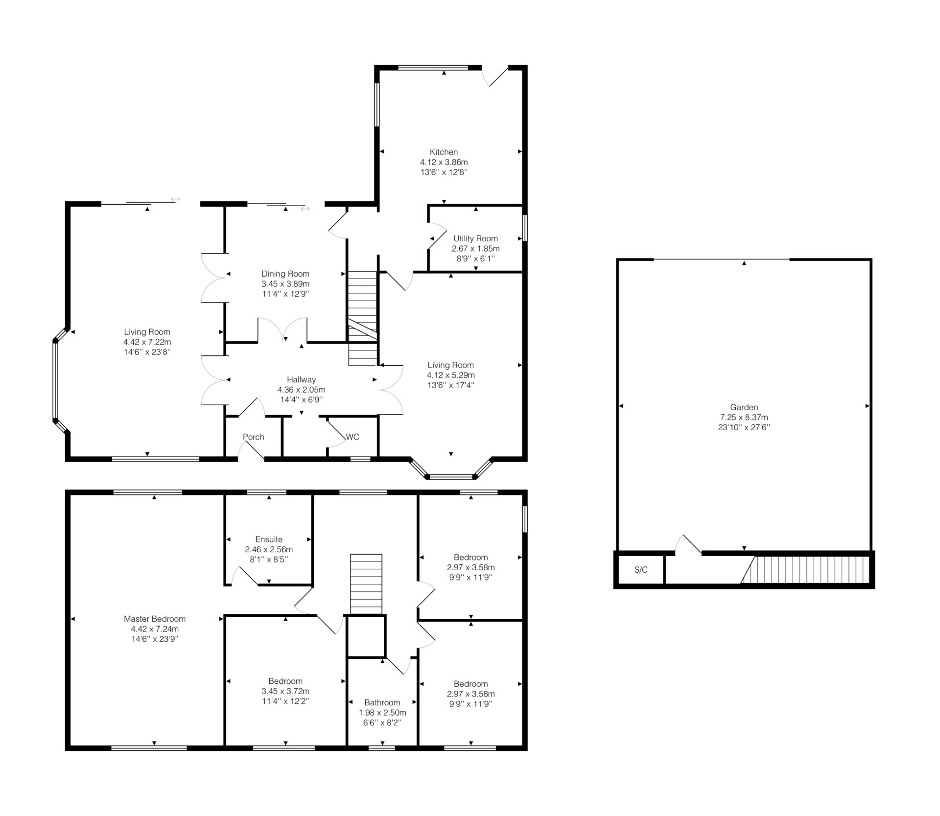
Floorplan

Need a mortgage?

We work with Mason Smalley, a 5-star rated mortgage brokerage with dedicated advisors handling everything on your behalf.

Can't find what you are looking for?

Speak with your local agent