• Asking price

    £600,000
  • Bathrooms

    2

  • Bedrooms

    3

Spacious 3-bed detached bungalow in sought-after Thurnby, featuring a stunning south-facing garden with countryside views and excellent development potential.

Description

Nestled on the highly sought-after Grange Lane in the charming village of Thurnby, this deceptively spacious detached bungalow offers a wonderful blend of comfort and potential. Built in the 1960s, the home boasts a generous layout, a beautifully maintained south-facing garden, and an incredible open-truss loft space, offering excellent scope for further development into a house if desired.

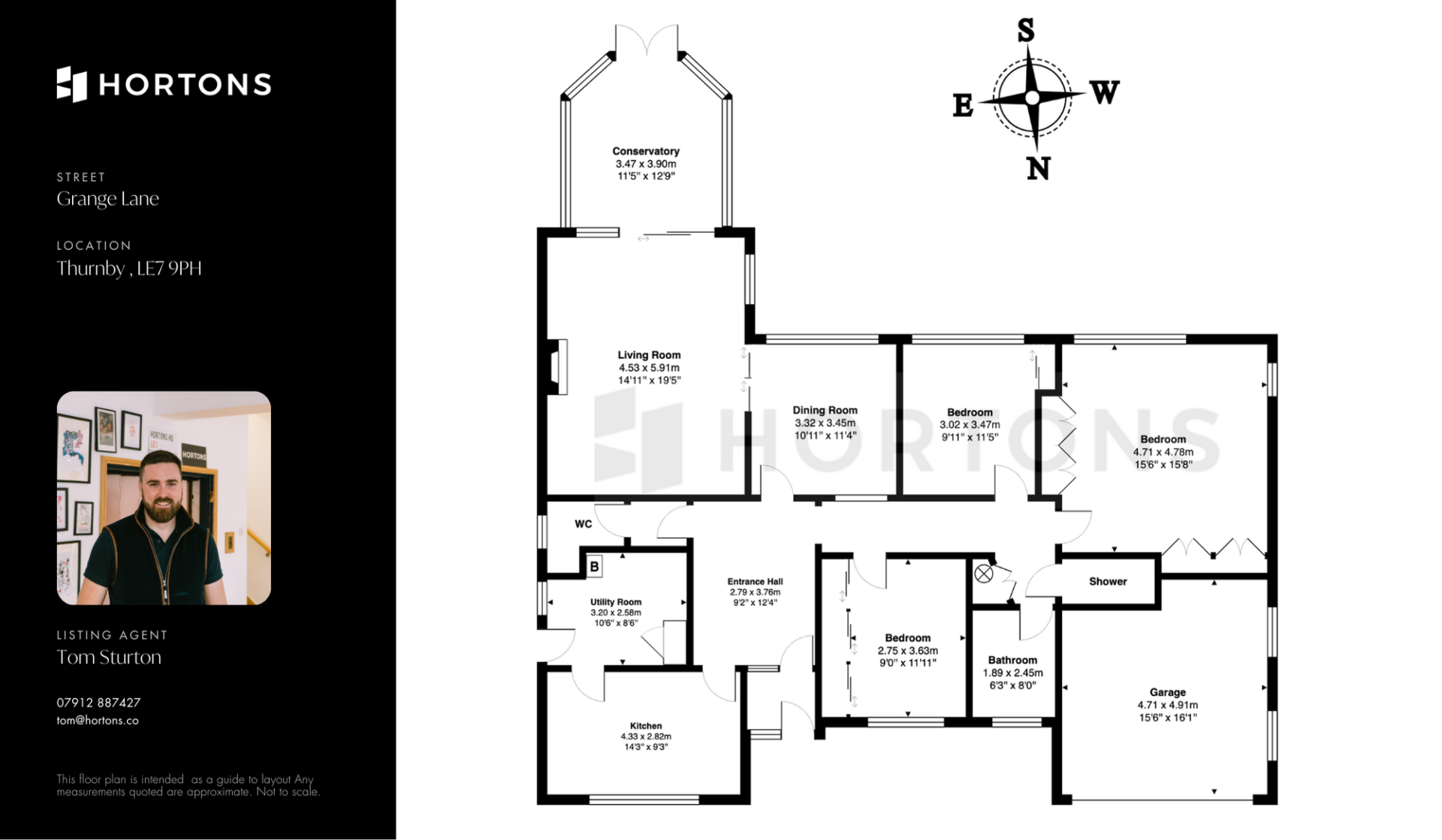
Accommodation

Upon arrival, you are welcomed into an enclosed porch that leads into a warm and inviting entrance hall, providing access to the majority of the accommodation. A convenient guest WC is also located here.

Kitchen & Utility Room

The well-appointed kitchen sits at the front of the property and features classic shaker-style hardwood cabinetry with solid wooden worktops. Integrated appliances include a dishwasher, stainless steel sink, electric ovens, and a four-ring gas hob with an extractor fan. There is ample space for a larder fridge, and the room comfortably accommodates a breakfast table.

Leading from the kitchen, the utility room provides additional storage with base-level cabinets, a stainless steel sink, and space for a washing machine, tumble dryer, and fridge/freezer. A side door allows direct access to the exterior.

Living & Dining Areas

Positioned to the rear, the spacious living room exudes warmth and comfort. A gas fireplace with a charming marble and wooden surround serves as the focal point, while sliding patio doors open into a delightful conservatory. With central heating and roof blinds, this inviting space can be enjoyed all year round while taking in stunning garden views.

Adjoining the living room is the dining room, accessible from both the entrance hall and via sliding doors from the lounge. This well-proportioned space can accommodate a six-seater dining table with additional furniture and enjoys a large window overlooking the garden.

Bedrooms & Bathrooms

The bungalow offers three well-sized bedrooms:

  • The Master Bedroom is a spacious king-size room with two sets of fitted double wardrobes and a large rear-facing window framing the tranquil garden views.

  • Bedroom Two is a generous double room with fitted wardrobes and a front-facing aspect.

  • Bedroom Three is another comfortable double room, also benefiting from fitted wardrobes and views over the rear garden.

The bedrooms are serviced by a modern, fully tiled bathroom, which comprises a bath, WC, vanity wash basin, and a heated towel rail. Additionally, there is a separate shower room, also fully tiled, featuring a shower enclosure and heated towel rail.

Outside

The property enjoys a picturesque setting with an attractive ‘in and out’ tarmac driveway at the front, complemented by a neat lawn and well-maintained shrub borders. A remote-operated electric up-and-over door grants access to the double garage.

To the rear, the established south-facing garden is a true highlight, offering a tranquil haven with uninterrupted views over rolling countryside. The beautifully maintained lawn is bordered by mature flower beds, and a patio seating area provides the perfect spot to enjoy the peaceful surroundings. Gated access to the front is available down both sides of the property, with one side incorporating a useful lean-to timber garden store.

Development Potential

A particularly exciting feature of the property is its sizeable open-truss loft space, complete with a dormer window. This expansive area presents an excellent opportunity for conversion into further bedrooms, making it an ideal prospect for those looking to extend.

The Finer Details

  • Tenure: Freehold

  • Energy Rating: C

  • Council Tax Band: F (Harborough District Council)

  • Mains Services: Gas, Water, Electricity, Drainage

  • Conservation Area: No

  • Gas Central Heating

  • Boiler: Approx. 10 years old

Offering an abundance of space, a welcoming charm, and superb potential for development, this delightful bungalow is a rare find in such a desirable location. Viewings are highly recommended to fully appreciate all it has to offer.

Disclaimer
In accordance with current legal requirements, all prospective purchasers are required to undergo an Anti-Money Laundering (AML) check. An administration fee of £40 per property will apply. This fee is payable after an offer has been accepted and must be settled before a memorandum of sale can be issued.

Floorplan

Need a mortgage?

We work with Mason Smalley, a 5-star rated mortgage brokerage with dedicated advisors handling everything on your behalf.

Can't find what you are looking for?

Speak with your local agent