• Asking price

    £300,000 Guide Price
  • Bathrooms

    1

  • Bedrooms

    3

Description

Nestled in a highly desirable cul de sac location within a sought after residential area, this extended three bedroom semi detached house offers a fantastic opportunity as an ideal first time buy or perfect family home.

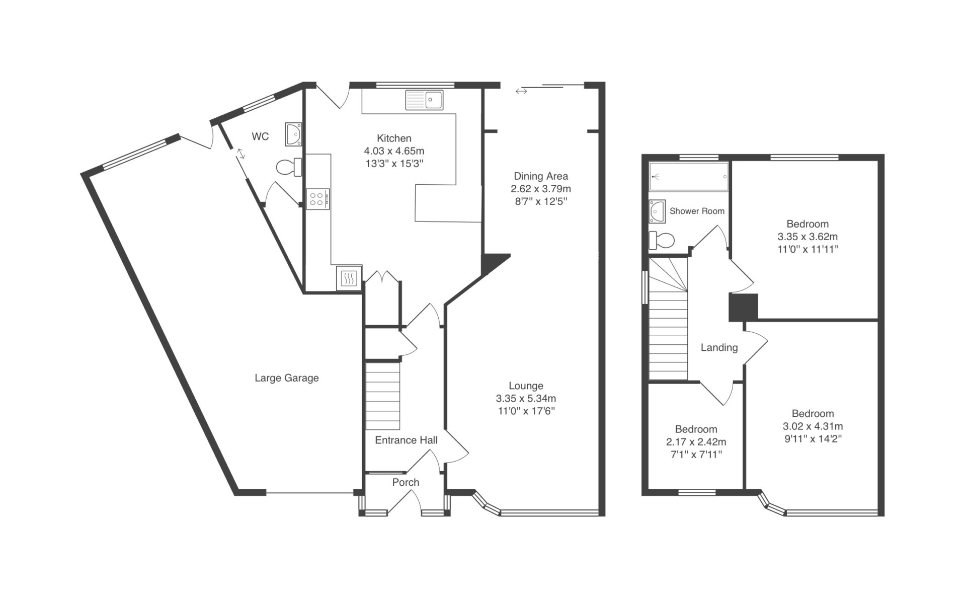
The ground floor accommodation comprises porch, entrance hall and a good size lounge diner, a bright and airy living space which has patio doors opening to the rear garden. A separate breakfast kitchen, makes this the perfect home for spending quality time with family and friends. On the first floor are three well proportioned bedrooms along with a shower room.

Boasting a generous size corner plot, this home offers ample off road parking and a spacious garage providing a great amount of storage. A separate WC has been installed from the garage for practicality. The fantastic south facing rear garden provides a peaceful outdoor sanctuary, perfect for relaxation and enjoyment during the warmer months of the year. Whether it's entertaining guests, enjoying a morning coffee or simply basking in the sun, the property's well maintained garden provides an idyllic setting for various outdoor activities.

Residents can enjoy the amenities which are found locally in the centre of Birstall. Whether you’re looking for schooling, shopping or some great places to dine out, Birstall has a lot on offer. Also having excellent transport links with the A6 close by giving access towards Leicester or out towards the A46. This making commuting a breeze.

This fantastic property is coming to the market for the very first time since being built in the late 1950’s. A rare opportunity to purchase a gem in the highly desirable Gates area of Birstall. Early viewings are highly advised due to the high level of interest expected in such a great family home.

Disclaimer
In accordance with current legal requirements, all prospective purchasers are required to undergo an Anti-Money Laundering (AML) check. An administration fee of £40 per property will apply. This fee is payable after an offer has been accepted and must be settled before a memorandum of sale can be issued.

Floorplan

Need a mortgage?

We work with Mason Smalley, a 5-star rated mortgage brokerage with dedicated advisors handling everything on your behalf.

Can't find what you are looking for?

Speak with your local agent