• Asking price

    £170,000 Offers Over
  • Bathrooms

    1

  • Bedrooms

    2

NO CHAIN- Introducing this charming two-bedroom end-of-terrace home located on the desirable Hopefield Road in Leicester. Perfectly situated between Leicester City Centre and Fosse Shopping Park, this property offers excellent access to motorway links, an ideal choice for those working in the City.

Description

NO CHAIN - Introducing this charming two-bedroom end-of-terrace home located on the desirable Hopefield Road in Leicester. Perfectly positioned between Leicester City Centre and Fosse Shopping Park, this property offers excellent access to major motorway links, making it an ideal choice for commuters and those working in the City.

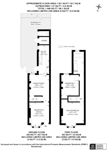
As you step into the property, you are welcomed by two fantastic reception rooms. The first reception room is bright and spacious, providing a versatile space for relaxing or entertaining guests. The second reception room, which serves as the dining area, is a highlight of the home, featuring an original fireplace that adds character and a sense of history to the space. This room seamlessly leads to the well-appointed kitchen, which offers direct access to the rear garden.

Upstairs, the first floor continues to impress with two generous double bedrooms. The master bedroom, located at the front of the house, is a peaceful retreat, offering plenty of space for a comfortable sleeping area. The second bedroom is spacious and can serve as a child’s room room, home office, or guest room, depending on your needs. Again, the feature fireplace giving it that extra edge.

The family bathroom, situated at the rear of the first floor, is beautifully designed, combining modern fittings with a classic aesthetic. This gorgeous bathroom provides a relaxing environment.

Outside, the property benefits from a private rear garden, ideal for outdoor dining, gardening, or simply enjoying a sunny afternoon.

Disclaimer
In accordance with current legal requirements, all prospective purchasers are required to undergo an Anti-Money Laundering (AML) check. An administration fee of £40 per property will apply. This fee is payable after an offer has been accepted and must be settled before a memorandum of sale can be issued.

Floorplan

Need a mortgage?

We work with Mason Smalley, a 5-star rated mortgage brokerage with dedicated advisors handling everything on your behalf.

Can't find what you are looking for?

Speak with your local agent