• Asking price

    £300,000 Offers Over
  • Bathrooms

    2

  • Bedrooms

    3

Description

A meticulously decorated and generous size three bedroom home which is nestled in a pleasant cul-de-sac on a popular modern development in Syston. This spacious abode boasts generous size accommodation spread elegantly over three floors, exuding a sense of comfort and style throughout.
The property, built in 2017 and covered by a 10-year new homes warranty, has been extremely well maintained and thoughtfully improved by its current owners, making it a turnkey option for discerning buyers.
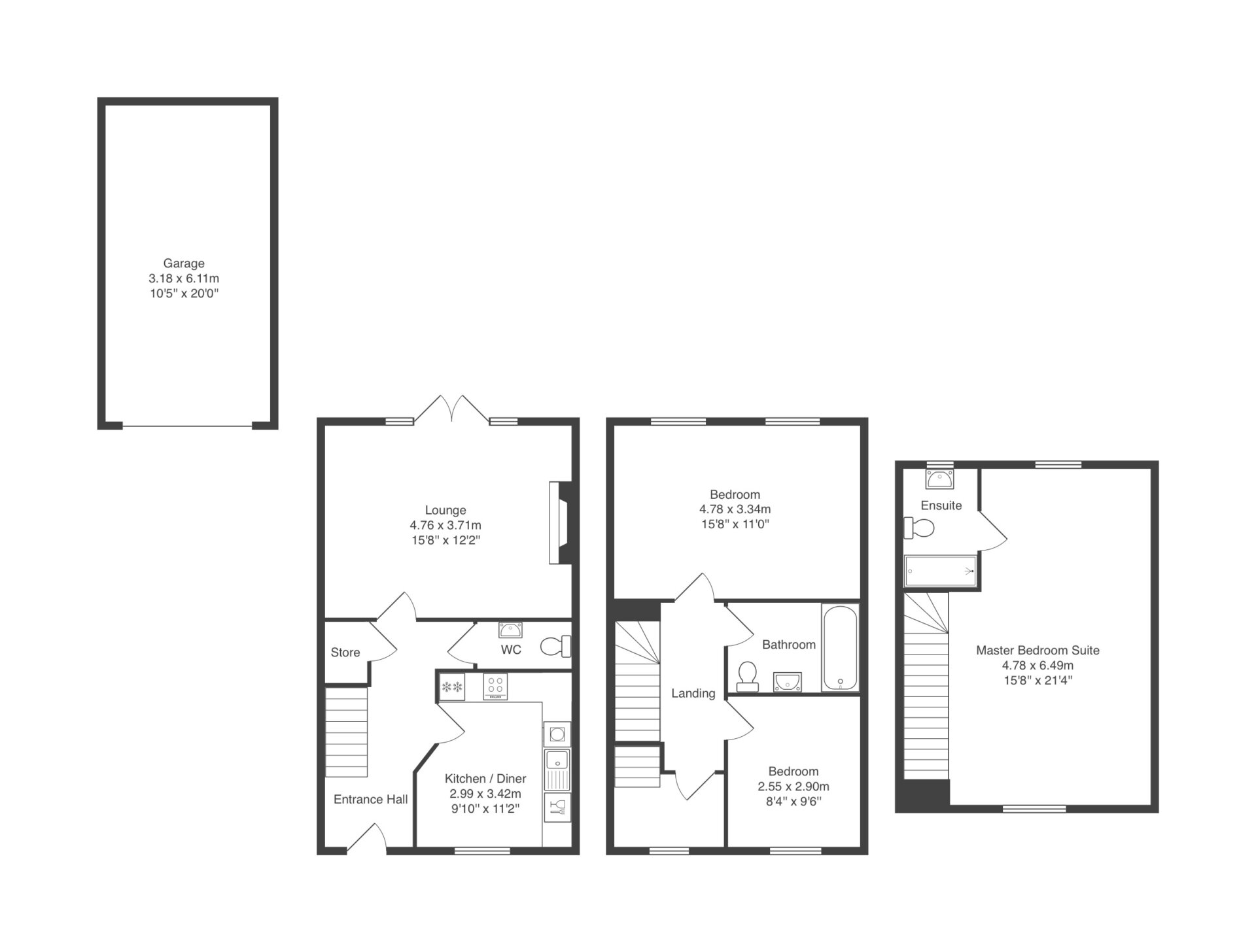
Having internal accommodation comprising entrance hall, with a useful storage cupboard and ground floor WC. The lounge is bright, airy and often flooded with natural sunlight thanks to the French doors which open out to the south facing rear garden. A truly comfortable space for family time. The kitchen diner located towards the front of the property is fitted with a range of stylish modern units. Having an array of integrated appliances including fridge freezer, dishwasher, washer dryer, double oven along with a four burner gas hob and cooker hood over. This really is a culinary enthusiasts dream!
On the first floor you’ll find two well proportioned bedrooms along with the family bathroom. Ascend to the second floor where the master bedroom suite is located. Generous in size and having the convenience of an en-suite shower room. An ideal space to relax in after a long day.
Outside, the driveway is located at the side of the house which provides comfortable off road parking for two to three vehicles. The garage is located at the end of the driveway which is accessed via an up and over door. The garage has been fitted with both power, lighting and provides fantastic amount of storage.
The south facing rear garden, again generous in size is the perfect place to spend during the warmer months of the year. Whether you’re entertaining family and friends or wanting a quiet space to relax in, this is the perfect outdoor retreat.

With excellent local amenities and good transport links in close proximity, this home presents an ideal opportunity for those seeking their first home or a fantastic family dwelling. Being offered for sale with no upward chain, early viewings are highly recommended to avoid missing out on this enticing property.

Note: Annual estate management costs are approximately £250 per annum.

Disclaimer
In accordance with current legal requirements, all prospective purchasers are required to undergo an Anti-Money Laundering (AML) check. An administration fee of £40 per property will apply. This fee is payable after an offer has been accepted and must be settled before a memorandum of sale can be issued.

Floorplan

EPC

Need a mortgage?

We work with Mason Smalley, a 5-star rated mortgage brokerage with dedicated advisors handling everything on your behalf.

Can't find what you are looking for?

Speak with your local agent