• Asking price

    £325,000 Guide Price
  • Bathrooms

    4

  • Bedrooms

    3

Description

A recently completed three bedroom detached property which offers versatile accommodation throughout and would make an ideal first time buy or perfect family home.

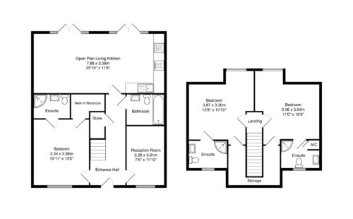
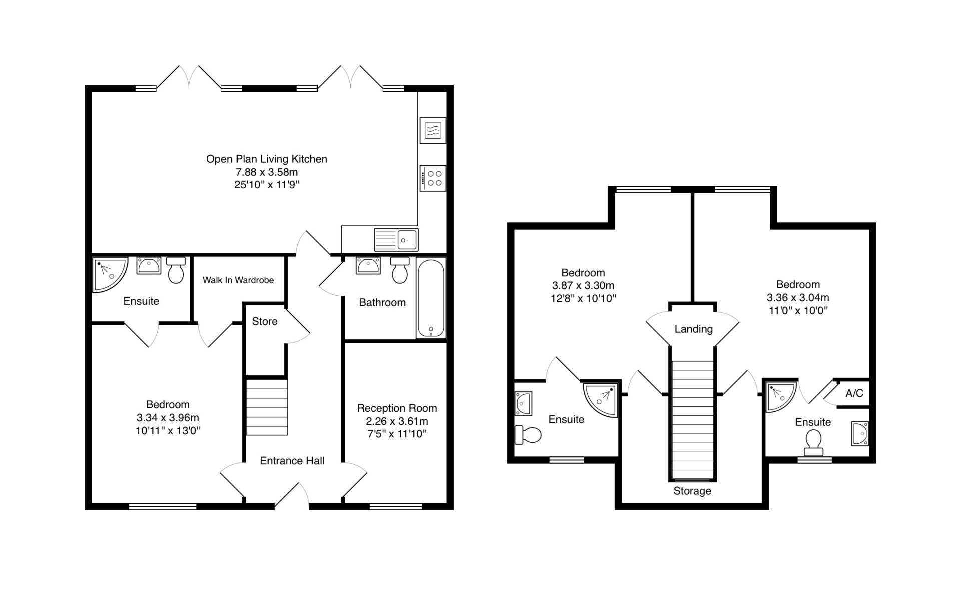
The accommodation comprises of an entrance hall with useful understair storage cupboard and stairs which lead to the first floor. There is a fantastic open plan living area with stylish fitted kitchen located toward the rear of the property which is bright and airy due to two sets of French doors letting in an abundance of light. The stunning kitchen is fitted with a range of wall, base and drawer units with an ample amount of work surface over. Complete with an integrated electric oven and gas hob with cooker hood over. There’s also sufficient space for further appliances.

Towards the front of the property is a ground floor bedroom which has an en-suite shower room along with a walk in wardrobe. Also a separate study/bedroom four depending on the buyers requirements. The family bathroom is fitted with a white three piece suite finished with complimentary floor and wall tiling.

On the first floor are two further bedrooms, both of which have en-suite showers rooms and plentiful storage.

Outside the property there is a small paved frontage. Two allocated parking spaces make parking a breeze for residents. To the rear of the property is an enclosed garden with paved patio and lawn with fenced boundaries and secure gated access.

The property has been finished to a good standard throughout and must be viewed to truly appreciate the accommodation on offer. This stunning home is being offered for sale with no upward chain. Early viewings are highly recommended to avoid disappointment.

Management charge - £29.78 pcm (TBC by sellers solicitors)

Disclaimer
In accordance with current legal requirements, all prospective purchasers are required to undergo an Anti-Money Laundering (AML) check. An administration fee of £40 per property will apply. This fee is payable after an offer has been accepted and must be settled before a memorandum of sale can be issued.

Floorplan

Need a mortgage?

We work with Mason Smalley, a 5-star rated mortgage brokerage with dedicated advisors handling everything on your behalf.

Can't find what you are looking for?

Speak with your local agent