• Asking price

    £350,000 Guide Price
  • Bathrooms

    2

  • Bedrooms

    4

A magnificent and greatly extended family home, positioned close to schools and amenities in the popular suburb of Thurnby.

Description

Welcome to this beautifully extended four-bedroom semi-detached home on Pulford Drive, Scraptoft—a perfect retreat for modern family living. With thoughtful expansions and elegant finishes throughout, this property offers an inviting blend of space, style, and comfort.

 

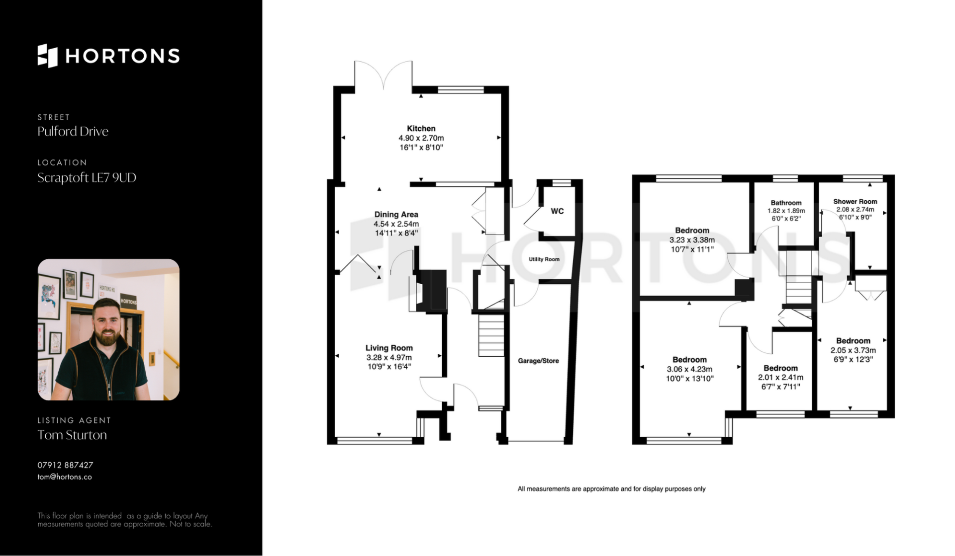
Upon arrival, you're greeted by a charming storm porch that leads into a warm and welcoming entrance hall. Here, you'll find the staircase ascending to the first floor and doors that open into the heart of the home. To the left, the living room exudes a contemporary yet cosy atmosphere. Natural light floods the space through a large front window, highlighting the room’s focal point: a wood-burning stove that adds a touch of rustic charm. For larger gatherings, the expansive folding doors can be drawn back, seamlessly connecting the living room with the kitchen/dining room, creating an ideal space for entertaining.

 

The kitchen dining room is undoubtedly the star of the show. With its open-plan design, it perfectly balances practicality and style. The dining area, complete with a breakfast bar, is the perfect spot for casual family meals or morning coffee, while the kitchen itself is a culinary dream. It boasts a sleek U-shaped layout, generous worktop space, and a host of appliances, including a Belling range cooker, integrated dishwasher, and a convenient boiling water tap. French doors open out to the rear garden, effortlessly extending the living space outdoors.

 

Adjacent to the kitchen, the utility room provides a practical space for laundry tasks, with room for a washing machine and tumble dryer. Here, you'll also find a handy WC and direct access to the garage, making day-to-day life a little easier.

 

Upstairs, the home continues to impress with its spacious split-level landing leading to four well-appointed bedrooms. Three of these are generous doubles (one currently serving as a home office), offering ample space for relaxation, while the fourth, a cosy single, is currently set up as a nursery. These rooms are served by both a stylish bathroom and a separate shower room, ensuring that busy mornings run smoothly.

 

The exterior of the property is just as inviting. The front offers a paved driveway with parking for up to two cars, leading to a garage with a remotely operated vertical shutter door for added convenience. The rear garden is a private haven, mostly laid to lawn and enclosed by fencing on all sides. Two patio areas, one of which is raised, provide delightful spots for outdoor dining or simply enjoying the sunshine. A timber shed completes the picture, offering additional storage space for garden tools or outdoor toys.

 

This extended family home on Pulford Drive is ideal for modern living, combining practical features with stylish touches. It’s a great choice for families looking to settle in a peaceful, yet well-connected suburb.

Disclaimer
In accordance with current legal requirements, all prospective purchasers are required to undergo an Anti-Money Laundering (AML) check. An administration fee of £40 per property will apply. This fee is payable after an offer has been accepted and must be settled before a memorandum of sale can be issued.

Floorplan

Need a mortgage?

We work with Mason Smalley, a 5-star rated mortgage brokerage with dedicated advisors handling everything on your behalf.

Can't find what you are looking for?

Speak with your local agent