• Asking price

    £300,000 Offers Over
  • Bathrooms

    1

  • Bedrooms

    3

Description

Occupying a substantial plot on one of Oadby’s most popular residential streets, this elegant three-bedroom semi-detached home is offered to the market with no upward chain. Surrounded by mature, well-established gardens and benefitting from a private driveway and garage, the house has been thoughtfully maintained and presents a wonderful opportunity for further enhancement or extension, subject to planning.

A wide, welcoming hallway sets the tone for the interiors beyond, where an understated, neutral palette complements the abundant natural light throughout. To the front, the living room is wonderfully proportioned, with a broad picture window framing verdant views of the front garden and inviting in the morning sun. At the rear, a separate dining area enjoys a peaceful garden outlook and offers a natural space for entertaining. The adjoining kitchen is both practical and well-designed, fitted with sleek cabinetry and providing ample room for freestanding appliances. Beyond, a generous lean-to conservatory offers a year-round connection to the garden, with glazing on all sides drawing in the greenery and light.

Upstairs, three well-sized bedrooms offer versatile accommodation. The main bedroom spans the full width of the house and benefits from expansive windows that flood the room with soft natural light. A recently updated family bathroom, styled in contemporary tones with quality fittings, completes the first floor. Outside, the rear garden is a true sanctuary. South-westerly in orientation, it enjoys sunlight from late morning through to the evening, creating the perfect setting for outdoor living. A mix of lawn, paving, and mature planting creates a balanced, tranquil space, with ample room for children to play, quiet relaxation, or the addition of a garden studio or extension.

With its generous proportions, established setting, and abundant natural light, this home offers immense potential to reimagine and extend (STPP), while remaining immediately liveable in its current form.

Location:

Rosemead Drive is quietly positioned within one of Oadby's most sought-after residential enclaves, known for its leafy surroundings, strong community feel, and excellent access to everyday amenities. The area is particularly popular with families, thanks to its proximity to several of Leicester’s most highly regarded schools, including Manor High School, Launde Primary School, and the outstanding Beauchamp College — all within easy reach. Oadby’s thriving centre is just a short walk or drive away and offers an excellent range of independent shops, cafés, and restaurants, alongside familiar high-street names and a large Sainsbury’s supermarket. The nearby Leicester Racecourse and Botanic Gardens provide expansive green spaces, while local sports clubs and leisure centres cater to active lifestyles. For those commuting, Rosemead Drive is well connected. Leicester city centre can be reached in under 20 minutes by car, with regular bus services also available. Leicester railway station offers direct links to London St Pancras in around an hour, making the area a convenient base for both city professionals and families seeking a quieter pace of life.

Material information:

Council tax band: C.

Tenure: Freehold.

Water meter: Yes.

EPC rating: C.

No known covenants or building issues as far as we are informed.

Parking: Off road parking with a garage and driveway.

Disclaimer
In accordance with current legal requirements, all prospective purchasers are required to undergo an Anti-Money Laundering (AML) check. An administration fee of £40 per property will apply. This fee is payable after an offer has been accepted and must be settled before a memorandum of sale can be issued.

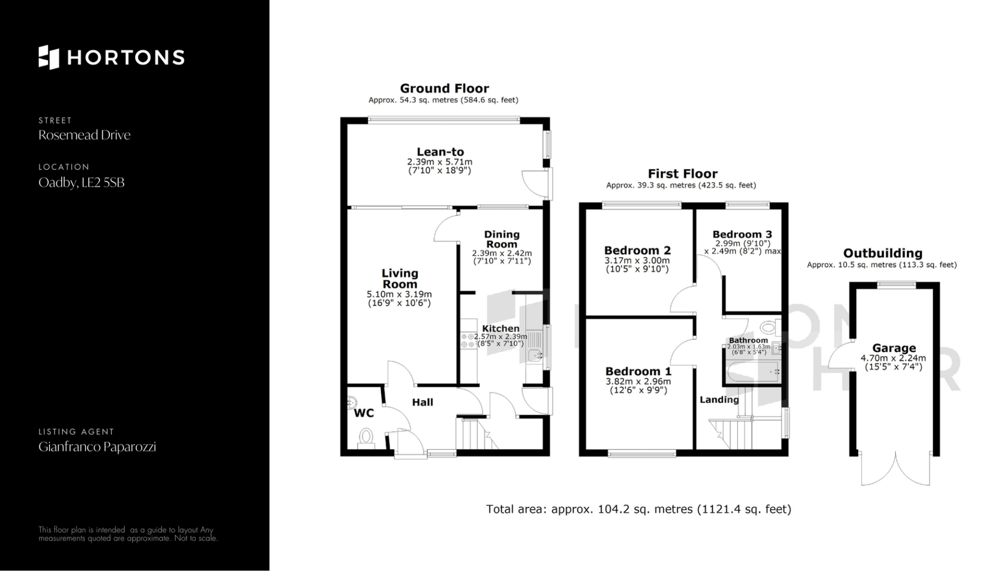
Floorplan

Need a mortgage?

We work with Mason Smalley, a 5-star rated mortgage brokerage with dedicated advisors handling everything on your behalf.

Can't find what you are looking for?

Speak with your local agent