Sidmouth Avenue

  • Leicester
  • LE5 4WB
  • Asking price

    £400,000 Offers in Excess
  • Bathrooms

    3

  • Bedrooms

    4

Description

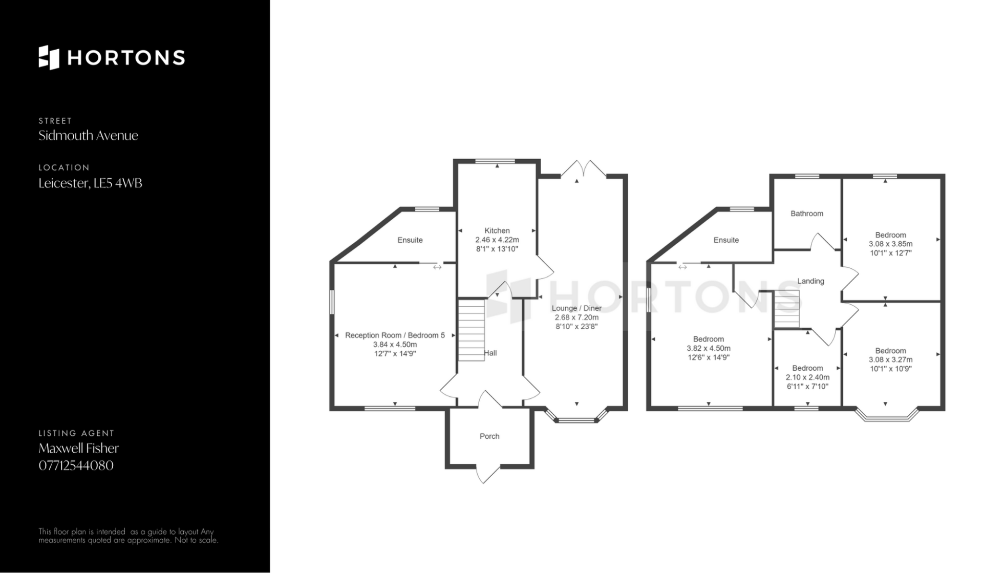
Presenting a charming 4 bedroom semi-detached house situated in a popular location, this property offers a comfortable and spacious living environment. Boasting three bathrooms, this inviting home provides ample space for a growing family or those in need of extra room.

This exquisitely designed four/five bedroom semi-detached home features a detached garage and off-road parking, ensuring convenience and comfort for residents. The low maintenance rear garden provides a peaceful retreat perfect for relaxation and outdoor enjoyment.

Located in a sought-after area, this property is close to local amenities and places of worship, offering convenient access to essential services and cultural institutions. Its prime location enhances the lifestyle of its residents, providing easy access to a range of shops, restaurants, and recreational facilities.

Upon entering the property, one is greeted by a welcoming and spacious living area ideal for entertaining guests or relaxing with family. The well-appointed kitchen provides a functional space and featuring ample storage.

The generously sized bedrooms offer a comfortable retreat at the end of a long day, providing privacy and tranquillity for residents. With three bathrooms, there is no shortage of convenience for busy households, ensuring everyone's needs are met.

Overall, this property presents a unique opportunity to reside in a well-designed and conveniently located home. With a blend of modern amenities, practical features, and a desirable location, this semi-detached house is sure to appeal to those seeking a comfortable and stylish living space.

Disclaimer

In accordance with current legal requirements, all prospective purchasers are required to undergo an Anti-Money Laundering (AML) check. An administration fee of £40 per property will apply. This fee is payable after an offer has been accepted and must be settled before a memorandum of sale can be issued.

Need a mortgage?

We work with Mason Smalley, a 5-star rated mortgage brokerage with dedicated advisors handling everything on your behalf.

Can't find what you are looking for?

Speak with your local agent