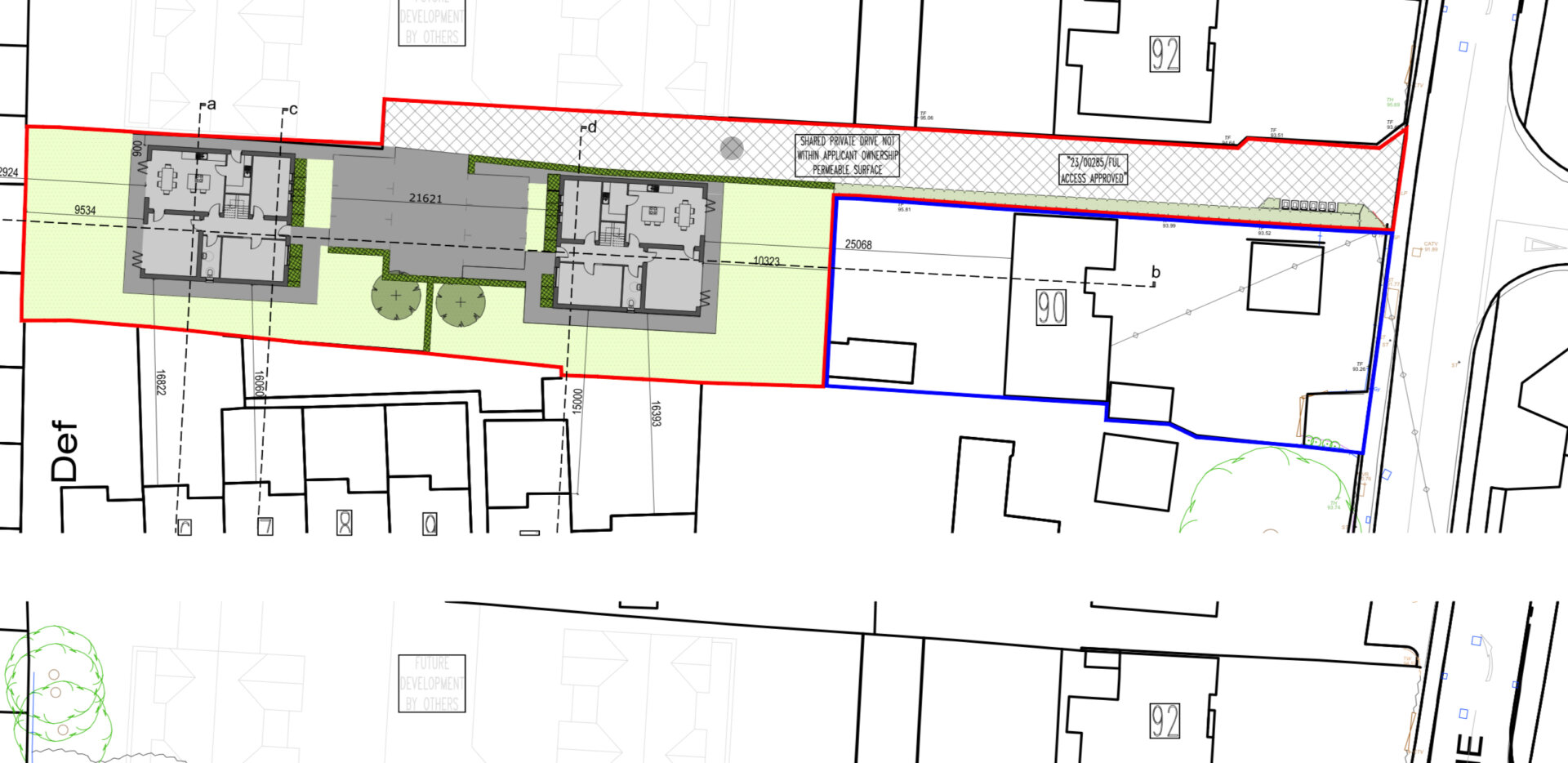
Plot 1, Land to the rear of 90 Station Lane

  • Leicester
  • LE7 9UF
  • Asking price

    £179,000 OIRO
Daniel Cassidy

Daniel Cassidy

Head of Investments & Developments

Request viewing

Rare opportunity to build a substantial 4-bed home on Scraptoft's desirable road. Full planning permission granted. Private location with room for enhancements.

Description

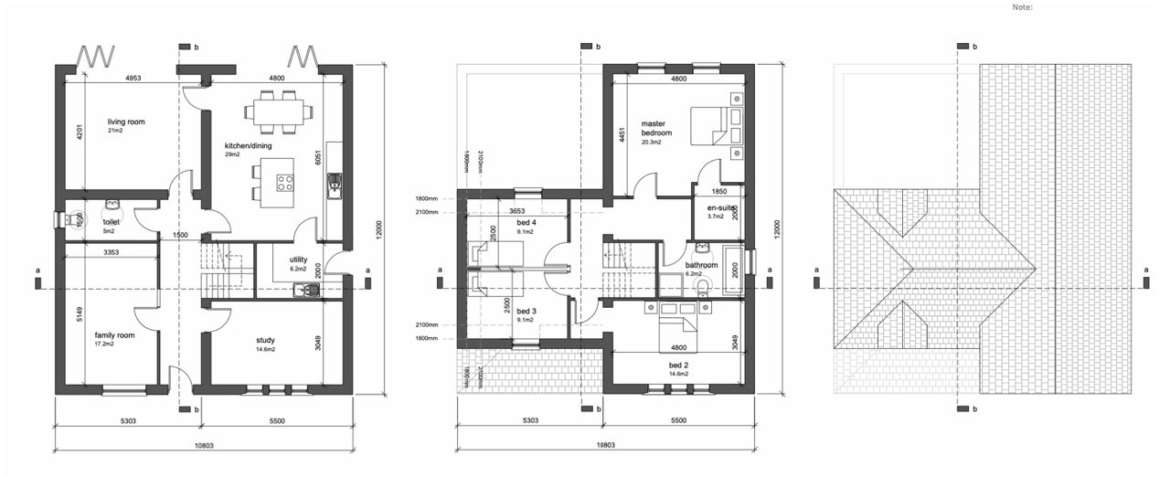
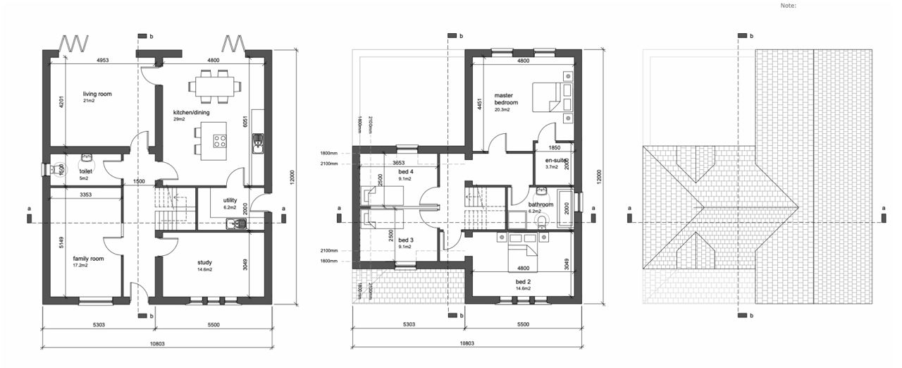
Positioned on one of Scraptoft’s most desirable roads, this prime parcel of land comes with full planning permission for a substantial four-bedroom detached family home measuring approximately 2,200 sqft.

Tucked away down a private access road just off the ever-popular Station Lane, the setting offers both privacy and prestige, a hidden gem in a location where opportunities like this are few and far between.

The proposed home has been designed to offer generous living accommodation across two floors, with a layout that prioritises family life and modern convenience. The current scheme presents a spacious and well-thought-out design, while also offering excellent scope for further enhancement (subject to additional planning consent), making it ideal for those wishing to future-proof or personalise their forever home.

Whether you're looking to build out a dream residence or invest in a sought-after spot with strong resale potential, this plot is a rare find.

Disclaimer
In accordance with current legal requirements, all prospective purchasers are required to undergo an Anti-Money Laundering (AML) check. An administration fee of £40 per property will apply. This fee is payable after an offer has been accepted and must be settled before a memorandum of sale can be issued.

Disclaimer

In accordance with current legal requirements, all prospective purchasers are required to undergo an Anti-Money Laundering (AML) check. An administration fee of £40 per property will apply. This fee is payable after an offer has been accepted and must be settled before a memorandum of sale can be issued.

Floorplan

Need a mortgage?

We work with Mason Smalley, a 5-star rated mortgage brokerage with dedicated advisors handling everything on your behalf.

Can't find what you are looking for?

Speak with your local agent