• Asking price

    £290,000 Guide Price
  • Bathrooms

    2

  • Bedrooms

    3

A stunning and exceptionally well presented three bedroom semi detached property located on the ever popular Hallam Fields development in Birstall. This fantastic property has been well maintained by the current owners and would make an ideal first time buy or perfect family home.

Description

An attractive and generous size three bedroom semi detached property which sits on a corner plot on this highly desirable Hallam Fields development in Birstall. Ideally located for some excellent local amenities, this fantastic property would make an ideal first time buy or perfect family home.

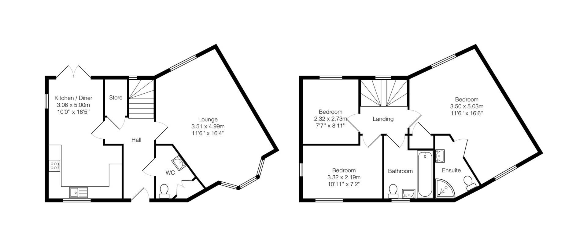
The accommodation comprises entrance hall with a useful storage cupboard, ground floor WC and stairs leading to the first floor. The lounge is of a good size, a bright and airy space due to the bay window which draws in an abundance of light. The kitchen diner is fitted with a range of stylish wall, base and drawer units with an ample amount of work surface over. The kitchen is complete with an integrated oven and hob with cooker hood over. There’s also space for further appliances. The garden can be accessed from the kitchen via French doors.

On the first floor are three well proportioned bedrooms, the master bedroom having an en-suite shower room. The family bathroom is fitted with a white three piece suite and finished with complimentary wall tiling.

Outside the property has an enclosed garden to the rear with paved patio and lawn. The garden is secured with fenced boundaries and gated side access. The driveway is located at the side of the house and provides ample off road parking.

This fantastic three bedroom home is being offered for sale in excellent order throughout. Early viewings are advised due to the high level of interest expected in this property.

Disclaimer
In accordance with current legal requirements, all prospective purchasers are required to undergo an Anti-Money Laundering (AML) check. An administration fee of £40 per property will apply. This fee is payable after an offer has been accepted and must be settled before a memorandum of sale can be issued.

Floorplan

Need a mortgage?

We work with Mason Smalley, a 5-star rated mortgage brokerage with dedicated advisors handling everything on your behalf.

Can't find what you are looking for?

Speak with your local agent