• Asking price

    £475,000 Guide Price
  • Bathrooms

    2

  • Bedrooms

    4

Description

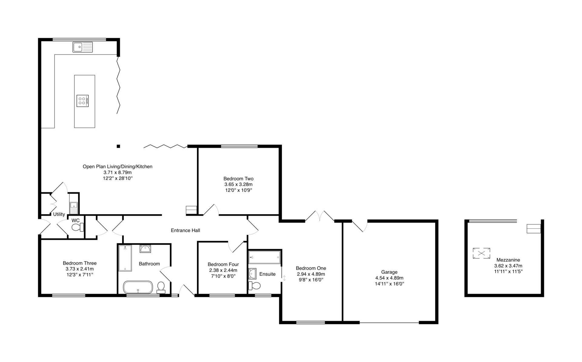
An exceptionally well presented four bedroom detached bungalow which has been extended and renovated throughout. The property now offers a modern contemporary layout and has been finished to the highest of standards.
The internal accommodation comprises of a welcoming entrance hall which leads directly into the heart of this stunning property, the open plan living room. This room is spacious, bright and airy thanks to two sets of bi-folding doors which open up to the rear patio terrace. From the living room you can access the mezzanine which would make an ideal space for a home office or study.
The stylish kitchen is fitted with an ample amount of units and a generous size central island. Integrated appliances to include fridge freezer, wine cooler, double oven and induction hob. Off the kitchen area is a separate utility room and WC.
The property has four well proportioned bedrooms, attractive en-suite shower room and luxury family bathroom.
Outside the property is a driveway to the front which provides ample off road parking for several vehicles and leads to the garage.
To the rear of the bungalow is generous size enclosed south facing garden. The garden has two paved patio area’s and lawn with fenced boundaries and secure gated access. There is also a secluded feature seating area. The garden been designed as the perfect space for quality time with family and friends during those summer months.
This fantastic bungalow is being offered for sale in excellent order throughout and must be viewed internally to be truly appreciated. The property is being offered for sale with no upward chain. Early viewings are highly recommended to avoid disappointment.

Disclaimer
In accordance with current legal requirements, all prospective purchasers are required to undergo an Anti-Money Laundering (AML) check. An administration fee of £40 per property will apply. This fee is payable after an offer has been accepted and must be settled before a memorandum of sale can be issued.

Floorplan

Need a mortgage?

We work with Mason Smalley, a 5-star rated mortgage brokerage with dedicated advisors handling everything on your behalf.

Can't find what you are looking for?

Speak with your local agent