Toon Close

  • Loughborough
  • LE12 7LB
  • Asking price

    £500,000 Offers Over
  • Bathrooms

    3

  • Bedrooms

    4

Description

Tucked away within an exclusive cul-de-sac in a highly desirable residential area, this substantial four bedroom detached family home offers exceptional space, privacy and flexibility - ideal for modern family living and entertaining.

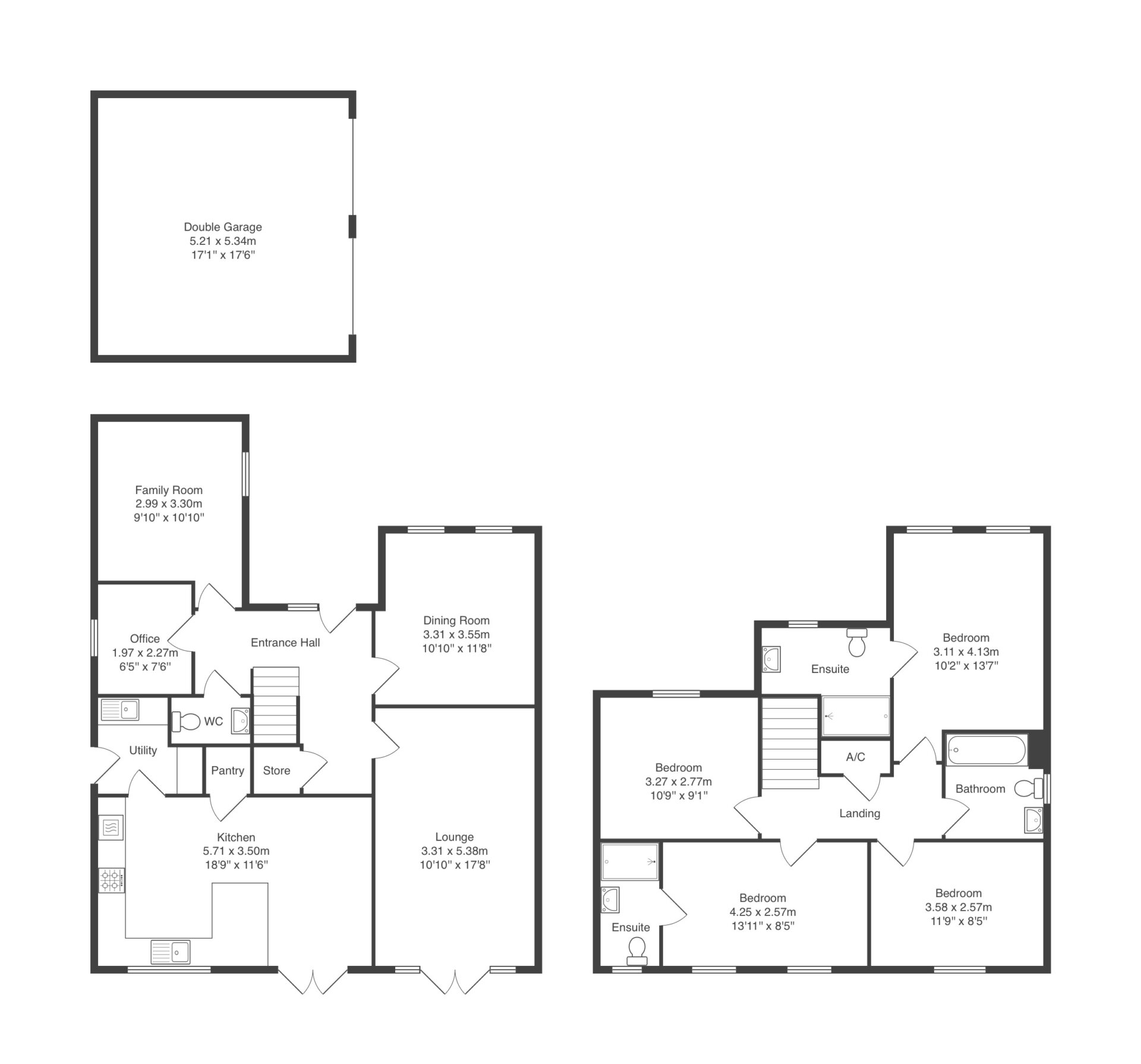
Immaculately presented throughout, the property opens into a spacious entrance hall leading to four generous and versatile reception rooms. These provide excellent flexibility for family life, formal entertaining, home working or hobbies, allowing the accommodation to adapt easily to changing needs. The well proportioned kitchen forms the heart of the home, offering ample storage and preparation space, ideal for everyday family life as well as hosting friends and gatherings. A useful utility room is located directly off the kitchen, and a ground floor WC completes the lower level accommodation.

To the first floor, four double bedrooms offer comfortable accommodation for the whole family, with two benefitting from en-suite facilities for added convenience and privacy. A well appointed family bathroom serves the remaining bedrooms.

Outside, the property enjoys a delightful and secure rear garden, predominantly laid to lawn with a paved patio - perfect for children to play, summer entertaining and relaxed family time. To the front, the property is equally well presented, with a block paved driveway providing ample off road parking for two vehicles and access to the double garage, ideal for secure parking or additional storage. A well maintained lawn enhances the kerb appeal, while gated side access leads conveniently to the rear garden. The overall plot offers plenty of space for keen gardeners or families to enjoy outdoor living.

Well positioned for excellent local amenities, reputable schools and convenient transport links, the property is ideally suited to families and commuters alike. Offering space, flexibility and a sought after cul-de-sac location, this is a superb opportunity to secure a high quality family home in a prime residential setting.

Disclaimer

In accordance with current legal requirements, all prospective purchasers are required to undergo an Anti-Money Laundering (AML) check. An administration fee of £40 per property will apply. This fee is payable after an offer has been accepted and must be settled before a memorandum of sale can be issued.

Floorplan

EPC

Need a mortgage?

We work with Mason Smalley, a 5-star rated mortgage brokerage with dedicated advisors handling everything on your behalf.

Can't find what you are looking for?

Speak with your local agent