Sold

  • Market Harborough
  • LE16 8SN
  • Asking price

    £800,000
  • Bedrooms

    6

Positioned within the heart of one of the Welland Valleys most sought after villages, Great Easton, and offering no onward chain, this six bedroom detached family home with double garage occupies a large corner plot with private wrap around gardens.

Description

Positioned within the heart of one of the Welland Valleys most sought after villages, Great Easton, and offering no onward chain, this six bedroom detached family home with double garage occupies a large corner plot with private wrap around gardens.

The Old Orchard forms an incredibly spacious home, with beautifully presented accommodation which is split over three floors offering a fantastic property that the next owners can move straight into and enjoy straight away, whilst also having a huge amount of versatility and potential for any aspiring purchaser to make their own.

On entering the property you will arrive at the impressive central hallway, with attractive timber staircase rising to the upper floors and oak doors off to the further accommodation in all directions. To one side lies the living room with feature cast iron log burner being the stand out feature and French doors opening out to the gardens. There is a through living kitchen diner to the rear of the property, again with French doors out to the gardens from a bay window. An attractive range of bespoke timber units are on the other side of this space, with a large breakfast island before and built in appliances. Off here is the utility room which also provides external access. To the front is a study which makes it an ideal home for someone to work from. Finally completing the ground floor is a handy cloakroom wc.

Moving up to the first floor, there are four double bedrooms, two of which enjoy an ensuite shower room. Most rooms throughout the home enjoy duel aspects, but all feature views over greenery and as you rise higher, the views become even better!

The second floor is accessed by another full staircase, onto its own landing with two rooms off. One is larger than the other, but both are again excellent doubles in size. This whole floor lends itself to potentially becoming a fantastic master suite, if you were to put in an ensuite and use the sixth bedroom as a dressing room too.

Externally, the property lies along one of the villages most popular and quiet lanes and is approached through a timber gateway onto a spacious block paved driveway providing off road parking for several vehicles before the double garage. The garage itself has an up and over door from the front with additional access out to the rear of the property too. The gardens wrap around the home, are incredible private and consist of a large lawn, various seating areas and handy section for sheds tucked away to one corner. They have been beautifully landscaped but again offer even more potential to enjoy in a number of ways.

Whist the village itself is incredibly sought after thanks to amenities like the church, hall, bustling pub The Sun Inn, and small farm shop at Rectory Farm - the village is ideally located for popular towns such as Market Harborough, Uppingham, Oakham and Stamford, all of which offer more comprehensive amenities or transport links. For those looking to commute, you can reach London in under an hour from Market Harborough for example.

What Our Sellers Say…

“We loved the lovely stonework and elevated position of the house, with rooms that fill with natural light. We also fell in love with Great Easton & have many friends here.”

Rooms & Measurements…

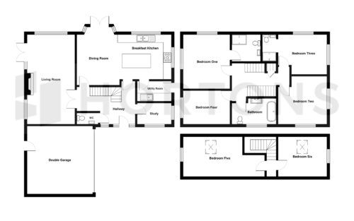
  • Hallway

  • Cloakroom WC

  • Living Room - 22’7” x 11’10” (6.88m x 3.61m)

  • Dining Kitchen - 23’5” x 14’4” (7.14m x 4.37m)

  • Utility Room - 8’5” x 4’9” (2.57m x 1.45m)

  • Study - 8’5” x 4’10” (2.57m x 1.47m)

  • Landing

  • Bedroom One - 13’7” x 11’9” (4.14m x 3.58m)

  • Ensuite One

  • Bedroom Two - 12’0” x 11’9” (3.66m x 3.58m)

  • Bedroom Three - 12’0” x 10’4” (3.66m x 3.15m)

  • Bedroom Four - 11’9” x 8’8” (3.58m x 2.64m)

  • Family Bathroom - 10’11” x 6’7” (3.33m x 2.01m)

  • Second Landing

  • Bedroom Five - 20’3” x 10’10” (6.17m x 3.30m)

  • Bedroom Six - 11’7” x 10’10” (3.53m x 3.30m)

  • Double Garage - 17’0” x 16’4” (5.18m x 4.98m)

Disclaimer
In accordance with current legal requirements, all prospective purchasers are required to undergo an Anti-Money Laundering (AML) check. An administration fee of £40 per property will apply. This fee is payable after an offer has been accepted and must be settled before a memorandum of sale can be issued.

Floorplan

Need a mortgage?

We work with Mason Smalley, a 5-star rated mortgage brokerage with dedicated advisors handling everything on your behalf.

Can't find what you are looking for?

Speak with your local agent