-
Asking price
£475,000 Offers Over -
Bathrooms
3
-
Bedrooms
4
Description
The Granary, Thorpe Village
The Granary is a genuinely rare find. A beautifully converted barn that manages to be both full of soul and thoroughly liveable. Sitting in the heart of Thorpe village, on the edge of the Nottinghamshire countryside, this exceptional home has been thoughtfully transformed to offer generous, characterful accommodation across two floors, blending the best of its original heritage with the kind of interiors that make you want to move in immediately. From the exposed ceiling beams and inglenook fireplace to the stunning open-plan kitchen and beautifully curated interiors, every room tells the story of a building that has been loved and lived in brilliantly.
This is a home being sold with a stress-free onward chain. The current owners have already reserved a new build home, meaning a smooth, hassle-free move awaits its next owners.
Inside The Granary
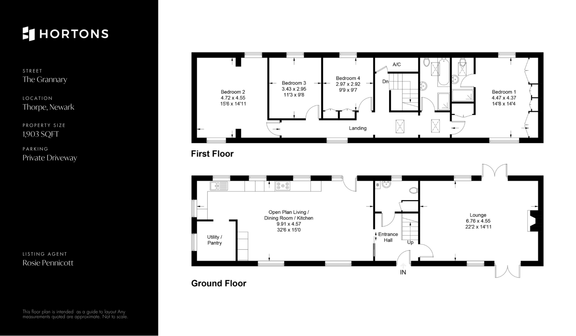
The entrance hall sets the tone straight away, with warm oak flooring and light and airy interiors.. To the right, the sitting room is the kind of space that stops people in their tracks - original exposed beams, a striking inglenook fireplace with brick surround and wood burning stove, and enough room to seat a crowd. It works just as well for quiet evenings as it does for entertaining.
Step through the sliding barn-style timber door and the heart of the home opens up. The open-plan kitchen, dining and living space is genuinely impressive. With sleek grey handleless cabinetry, generous worktop space, integrated appliances and an American fridge freezer, all sitting beneath the original beam structure on modern tiled flooring. Tucked around the corner is a generous walk-in pantry, perfect for those who love to spend time in the kitchen. The ground floor provides both access to front and rear gardens, and further contains a WC with space for laundry and further storage.
Upstairs, the landing is wide, light-filled, with a Velux skylight and soft sage green walls giving the floor a calm, cohesive feel. The principal bedroom is a genuinely wonderful room. It is a generous double with ample fitted storage and equipped with en-suite shower room. Just across the landing is a 4-piece family bathroom which services the three remaining bedrooms. All bedrooms are good sized and provide versatile space to accommodate all lifestyles. You can find beautiful countryside views from many of the first floor windows, only highlighting this home's peaceful surroundings.
Outside The Granary
The Granary makes as good a first impression outside as it does in. A beautifully landscaped main front garden provides a peaceful place for homeowners to enjoy a sunny afternoon or unwind with a glass of wine at the end of a warm day. The driveway is tucked out of sight, as situated to the rear of the property, which also provides an extra practical outdoor space.
Life in Thorpe Village
This is the kind of countryside setting that people move for. Thorpe village sits in the beautiful open Nottinghamshire countryside, with country walks on the doorstep and neighbouring village pubs within easy reach on foot or by bike. It is a small village, with a strong sense of pride and community. Amenities are within easy reach - with Hardy's Farm Shop just down the road and Newark just 10 minutes away. Newark itself provides a hub of activity with shops, restaurants and all major high street amenities, whilst also offering direct trains to London in little over an hour. This makes Thorpe a wonderful destination for those who want rural life but with city amenities.
Technical Details
Heating - Oil Central Heating
Waste - Klargester System
Tenure- Freehold
Council Tax - F
EPC Rating - C
Further Details
To find out more about The Granary or to arrange a viewing, contact Rosie Pennicott at Hortons - find her on Instagram @hortonsrosie or visit the Hortons website.
Whilst every care has been taken to prepare these sales particulars, they are for guidance purposes only. All measurements are approximate and for general guidance purposes only and whilst every care has been taken to ensure their accuracy, they should not be relied upon and potential buyers are advised to recheck the measurements.
Disclaimer
In accordance with current legal requirements, all prospective purchasers are required to undergo an Anti-Money Laundering (AML) check. An administration fee of £40 per property will apply. This fee is payable after an offer has been accepted and must be settled before a memorandum of sale can be issued.
Disclaimer
In accordance with current legal requirements, all prospective purchasers are required to undergo an Anti-Money Laundering (AML) check. An administration fee of £40 per property will apply. This fee is payable after an offer has been accepted and must be settled before a memorandum of sale can be issued.Need a mortgage?
We work with Mason Smalley, a 5-star rated mortgage brokerage with dedicated advisors handling everything on your behalf.
Can't find what you are looking for?
Speak with your local agent