• Asking price

    £350,000 Guide Price
  • Bathrooms

    4

  • Bedrooms

    4

PRICE GUIDE £350-360,000 Rare opportunity to own a spacious FOUR bed, FOUR bath End Of Terrace House with integrated garage and off-road parking. Modern amenities, central heating, and double glazing. Convenient location near Beeston town centre. No upward chain.

Description

PRICE GUIDE £350-360,000

This large FOUR Bedroom, FOUR bathroom, End Of Terrace House presents a rare opportunity for those seeking a spacious family home.
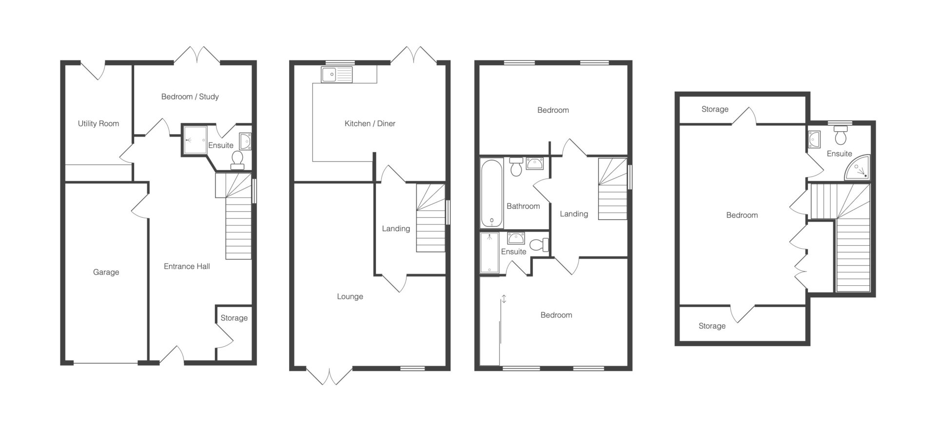
The property comprises of a large entrance hall, door to the integral Garage, bedroom Four/study with en-suite and patio doors to the rear garden and Utilty Room with a rear exit door. The first floor has the dining kitchen which has patio doors onto a balcony and a spacious lounge. The second floor has two bedrooms, one with an en-suite and a family bathroom and the third floor has a large bedroom and en-suite.
The modern amenities include gas central heating and double glazing throughout, ensuring a cosy and energy-efficient environment. Further enhancing its appeal, the property features off road parking and an integral garage, providing convenience and security. With the added benefit of no upward chain, prospective buyers can seamlessly transition into this inviting home. Enjoying a prime location within walking distance to Beeston town centre, residents are conveniently close to an array of amenities and transportation links. Viewings are available seven days a week to accommodate your schedule.

To the front, the property boasts off-road parking leading to the integral garage, ensuring ample space for vehicles. The pathway meanders to the front door, flanked by a welcoming hedge boundary that adds a touch of privacy. A gate leads to the low-maintenance south-west facing rear garden, where residents can bask in the sunshine and enjoy alfresco dining on the patio area.

Tenure - Freehold
Broxtowe Borough Council
Tax Band C £2,134
Partner Emma Cavers

Entrance Hall
Front entrance door, radiator, stairs to the first floor landing, two storage cupboards, door to garage, UPVC double glazed front entrance door and doors to

Bedroom Four 10' 4" x 8' 1" (3.15m x 2.46m)
UPVC double glazed patio doors to the rear, radiator, telephone point, and door to

En-Suite
Walk-in shower cubicle with shower from the mains, low flush w.c, pedestal wash hand basin, tiled walls and splashbacks, radiator, extractor fan.

Utility Room 10' 3" x 4' 5" (3.12m x 1.35m)
Plumbing for automatic washing machine, radiator, rear exit door.

First Floor Landing
stairs to the second floor and doors to

Lounge 9' 7" x 15' 8" (2.92m x 4.78m)
UPVC double glazed window and separate Juliette balcony, radiator, TV and telephone point, radiator

Kitchen 15' 2" x 11' 2" (4.62m x 3.40m)
Wall, base and drawer units with work surface over, stainless steel sink/waste/drainer unit with mixer tap over, splashbacks, five ring gas hob, eye level built-in oven and grill, appliance space, radiator,UPVC double glazed patio doors to a balcony and separate window.

Second Floor Landing
Stairs to the third floor landing and doors to

Bedroom Two 13' 2" x 9' 0" (4.01m x 2.74m)
Built-in wardrobes, UPVC double glazed window x2 to the front, laminate floor, TV point.

En-Suite
Walk-in shower cubicle with shower from the mains, low flush w.c, pedestal wash hand basin, tiled walls and splashbacks, radiator, shaver point, extractor fan.

Bedroom Three 15' 2" x 9' 0" (4.62m x 2.74m)
UPVC double glazed window x2 to the rear, radiator.

Bathroom 7' 5" x 5' 6" (2.26m x 1.68m)
Panelled bath with hand held shower head, low flush w.c, pedestal wash hand basin, radiator, tiled walls and splashbacks, extractor fan, shaver point.

Third Floor Landing
Velux window and door to

Bedroom One 11' 2" x 18' 8" (3.40m x 5.69m)
UPVC double glazed window to the rear, storage in the eaves, radiator, TV point, spotlights and door to

En-Suite
Walk-in shower cubicle with shower from the mains, low flush w.c, pedestal wash hand basin, tiled walls and splashbacks, chrome heated towel rail, vellum window, extractor fan, spotlights.

Disclaimer
In accordance with current legal requirements, all prospective purchasers are required to undergo an Anti-Money Laundering (AML) check. An administration fee of £40 per property will apply. This fee is payable after an offer has been accepted and must be settled before a memorandum of sale can be issued.

Floorplan

Need a mortgage?

We work with Mason Smalley, a 5-star rated mortgage brokerage with dedicated advisors handling everything on your behalf.

Can't find what you are looking for?

Speak with your local agent