• Asking price

    £350,000 Guide Price
  • Bathrooms

    2

  • Bedrooms

    3

Price Guide £350-375,000. Extended 3-bed detached home on peaceful cul-de-sac. Modern open-plan living, 2 baths, utility room. GCH/DG, log burner. Close to schools and excellent transport links.

Description

PRICE GUIDE £350-375,000

This extended three-bedroom detached family home, located on a peaceful cul-de-sac, presents an excellent opportunity for those seeking modern living in a desirable neighbourhood. Boasting an impressive open-plan Living/Kitchen/Dining room, complete with bi-fold doors opening onto the rear garden, this property offers a seamless blend of indoor and outdoor living spaces. With two bathrooms, including one en-suite, and a separate Utility Room, convenience is paramount. The property features gas central heating, a log burner for cosy evenings, and double glazing throughout, ensuring comfort year-round. Ideal for families, this home is within walking distance to local schools and picturesque countryside walks, with excellent transport links nearby. Viewings are available seven days a week, allowing prospective buyers ample opportunities to explore this inviting residence.

Outside, this property continues to impress with its well-appointed outdoor space, perfect for relaxing and entertaining. The front of the property features a block-paved driveway, complemented by a neatly manicured lawn and a rockery border adorned with vibrant flowers and small shrubs. Additionally, there is convenient access to the Garage via an up-and-over door, providing valuable storage space. Moving to the rear of the property, a generous decking area extends across the width of the house, offering a charming setting for al fresco dining or enjoying the garden views. Steps lead down to the spacious lawn, bordered by a gravel path and mature shrubs, creating a tranquil oasis. The garden is thoughtfully designed for privacy, enclosed by fenced and hedged boundaries. Practical amenities such as an outside tap and power sockets further enhance the functionality of this outdoor retreat, making it a delightful extension of this appealing family home.
The property is within walking distance of the local shops provided by Sawley. There are schools for younger children in Sawley and for older children being within a few minutes walk of the property. There are healthcare and sports facilities including the Trent Lock Golf Club, further shopping facilities can be found in Long Eaton where there are Asda, Tesco, Adli stores and many other retail outlets, walks in the lovely open countryside and at Trent Lock. The property is located near excellent transport links include junctions 24 and 25 of the M1, East Midlands Airport which can be reached via the Skylink bus which takes you to Castle Donington and the airport.

Tenure - Freehold
Council Tax Band ?
Partner - Emma Cavers

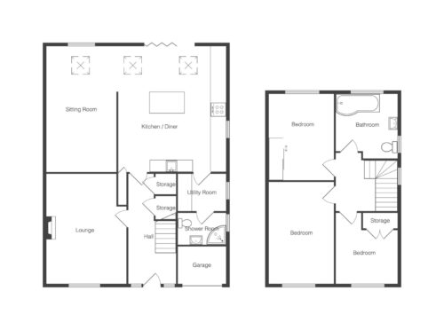
Entrance Hall
Composite front entrance door and windows, laminate floor, radiator, stairs to the first floor landing, coving to the ceiling, understairs storage cupboard and doors to

Lounge 13' 5" x 11' 8" (4.09m x 3.56m)
UPVC double glazed window, laminate floor, coving to the ceiling, log burner with a tiled hearth, radiator.

Living/Kitchen/Dining Room 14' 1" x 16' 1" (4.29m x 4.90m)
This is the main focal point of the property and includes, wall, base and drawer units with Wood work surface over, tiled walls and splashbacks, on the back wall is a Belfast sink, built-in dishwasher and bin cupboard, to the right are units with a full length built-in fridge, eye level built-in microwave, oven, electric hob and extractor hood over. There is an island which is used as a breakfast bar and also offers storage, laminate floor, spotlights, x4 vellum windows and three door bi-folds onto the rear garden. This room also opens into the sitting room and has a door to the utility room.

Living/Dining Room 18' 3" x 9' 0" (5.56m x 2.74m)
Laminate floor, UPVC double glazed window to the rear, radiator, spotlights.

Utilty Room 7' 3" x 5' 0" (2.21m x 1.52m)
Plumbing for automatic washing machine, appliance space, velux window, storage cupboards, radiator and door to

Shower Room
Walk-in shower cubicle with shower from the mains, sink, low flush w,c tiled walls and splashbacks, spotlights, laminate floor, chrome heated towel rail.

Landing
Access to the loft, coving to the ceiling, and doors to

Bedroom One 13' 3" x 9' 6" (4.04m x 2.90m)
UPVC double glazed window to the front, radiator, coving to the ceiling.

Bedroom Two 10' 5" x 9' 6" (3.18m x 2.90m)
UPVC double glazed window to the rear, built-in wardrobes, radiator, coving to the ceiling.

Bedroom Three 10' 3" x 8' 1" (3.12m x 2.46m)
UPVC double glazed window to the front, radiator, built-in storage.

Bathroom
P-shaped jacuzzi bath with the shower from the mains, sink, low flush w.c, tiled walls and splashbacks, laminate floor, spotlights, x2 UPVC double glazed windows.

Disclaimer
In accordance with current legal requirements, all prospective purchasers are required to undergo an Anti-Money Laundering (AML) check. An administration fee of £40 per property will apply. This fee is payable after an offer has been accepted and must be settled before a memorandum of sale can be issued.

Floorplan

EPC

Need a mortgage?

We work with Mason Smalley, a 5-star rated mortgage brokerage with dedicated advisors handling everything on your behalf.

Can't find what you are looking for?

Speak with your local agent