• Asking price

    £245,000 Guide Price
  • Bathrooms

    1

  • Bedrooms

    3

PRICE GUIDE £245-250,000 3-bed semi-detached ideal for first-time buyers. GCH/DG, parking, spacious rear garden with brick stores and WC. No chain. Close to amenities & transport links.

Description

PRICE GUIDE £245-250,000

This is a charming three bedroom semi-detached house presenting a wonderful opportunity for first-time buyers looking to settle into their dream home. Having as central heating and double glazing throughout, this cosy abode offers comfort and convenience. The property features off-road parking and has a good-sized rear garden complete with two brick stores and a fully functional outside WC. With no upward chain, this property is ready for new owners to make it their own. Viewings are available seven days a week to witness the beauty and charm of this home.

Entrance Hall, Lounge with a bay window, separate dining room and kitchen. Three bedrooms and bathroom.

Outside there is a driveway with room for at least two cars providing practicality and ease. The front lawn is privately enclosed by hedge and fenced boundaries. Access through a covered area from the gate at the front takes you to two brick storage rooms and the external WC. Step into the rear garden, where a patio takes you to steps leading to the lawn. Follow the path to discover a stunning Pergola, circular patio, and a functional garden shed, all surrounded by mature shrubs and trees. Privately enclosed with fenced boundaries, this outdoor haven ensures privacy and tranquillity for relaxation. Complete with power sockets and an outside tap, the harmonious blend of practicality and beauty defines this outdoor space.

The property boasts fantastic transport links and easy access into the town centre. You are walking distance to local schools and West Park Leisure Center. There are several supermarkets and healthcare facilities within the town centre. There are nearby bus stops and easy access to major road links such as the M1, A50 and A52 to both Nottingham and Derby should you need to commute.

Tenure - Freehold
Council Tax Band B £1,676
Partner - Emma Cavers

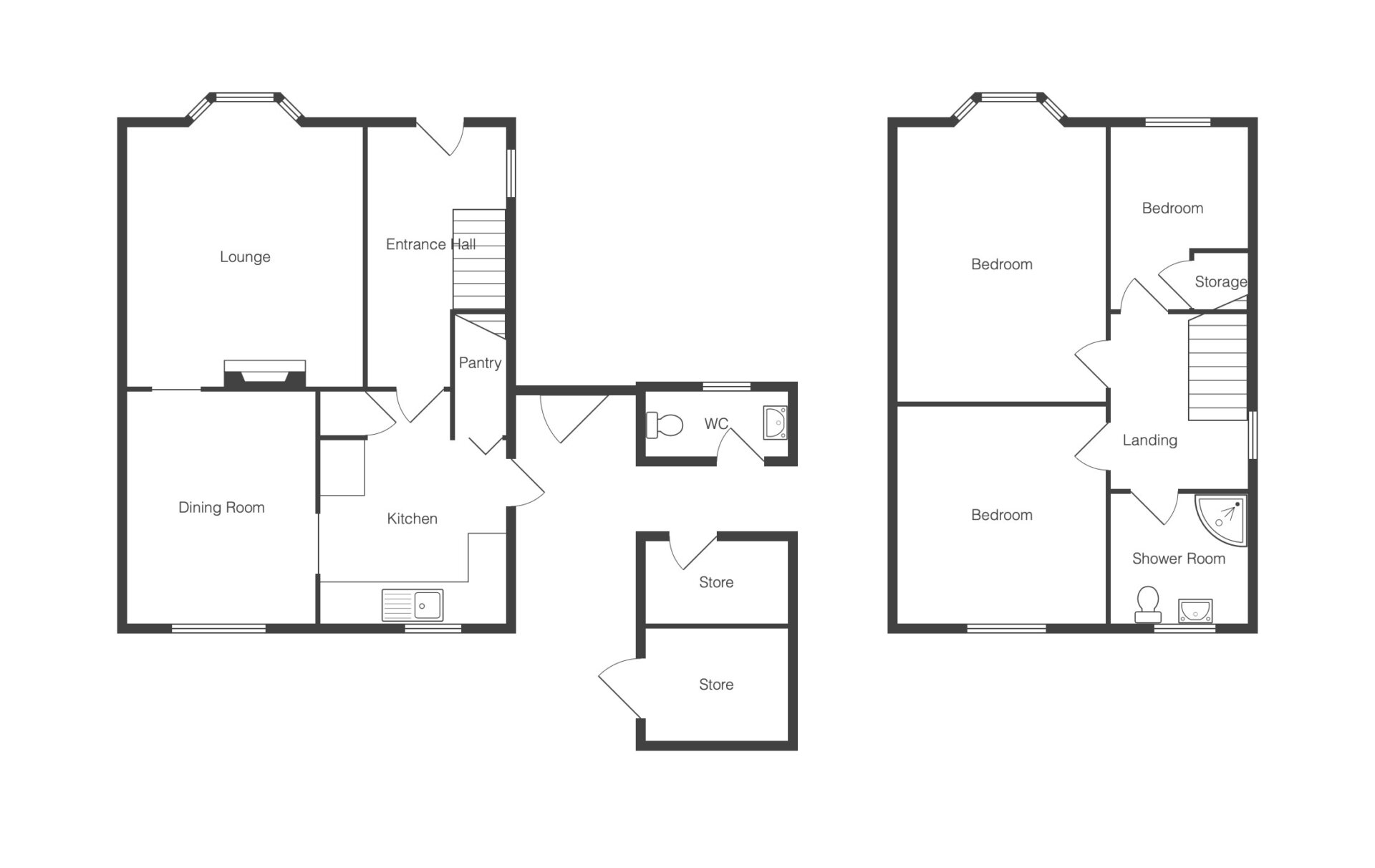
Entrance Hall
Composite front entrance door, stairs to the first floor landing, radiator, and doors to

Lounge 12' 3" x 14' 2" (3.73m x 4.32m)
UPVC double glazed window to the front, radiator, TV point and opening to the dining room

Kitchen 12' 4" x 7' 8" (3.76m x 2.34m)
Wall, base and drawer units with work surface over, stainless steel sink and drainer unit with mixer tap over, tiled walls and splashbacks, gas central heating boiler, under stairs storage, radiator, UPVC double glazed window to the rear, door to outside and door to

Dining Room 10' 2" x 10' 6" (3.10m x 3.20m)
UPVC double glazed window to the rear, radiator.

Landing
Access to the loft, laminate floor, UPVC double glazed window and door to

Bedroom One 14' 6" x 10' 9" (4.42m x 3.28m)
UPVC double glazed bay window to the front, radiator.

Bedroom Two 10' 7" x 10' 9" (3.23m x 3.28m)
UPVC double glazed window to the rear, radiator.

Bedroom Three 7' 4" x 9' 6" (2.24m x 2.90m)
UPVC double glazed window to the front, radiator, storage over the stairs.

Bathroom 5' 5" x 7' 3" (1.65m x 2.21m)
Walk-in shower cubicle with shower from the mains, low flush w.c, sink with storage, tiled walls and splashbacks, spotlights, heated towel rail, extractor fan, tiled floor.

Disclaimer
In accordance with current legal requirements, all prospective purchasers are required to undergo an Anti-Money Laundering (AML) check. An administration fee of £40 per property will apply. This fee is payable after an offer has been accepted and must be settled before a memorandum of sale can be issued.

Floorplan

EPC

Need a mortgage?

We work with Mason Smalley, a 5-star rated mortgage brokerage with dedicated advisors handling everything on your behalf.

Can't find what you are looking for?

Speak with your local agent