-
Asking price
£230,000 Guide Price -
Bathrooms
2
-
Bedrooms
3
Description
Nestled within a sought-after location, this immaculate, 3-bedroom semi-detached house offers a spacious retreat for modern living. Boasting a very large layout, the property features an en-suite in the master bedroom and a luxurious four-piece family bathroom for optimal convenience. The well-appointed kitchen is complemented by a separate utility room, while a substantial workshop at the rear provides added functionality with its light and power features. Enjoy the perks of a low-maintenance rear garden, perfect for relaxing or entertaining. With the added benefit of no upward chain, this residence is ideally situated within walking distance of Long Eaton train station and local schools, offering a convenient lifestyle for busy families. Viewings are available seven days a week, providing flexibility for interested parties.
The property's frontage is elegantly set back from the road, enclosed by a brick wall. A side access leads to the front door and a gate offering entry to the inviting rear garden. Here, the spacious workshop awaits, complete with light and power, along with a patio and an astroturf lawn ideal for outdoor activities. Enjoy the favourable southwest-facing garden, securely enclosed by fence and walled boundaries for peace of mind. Practical amenities such as an outside tap and multiple power sockets enhance the functionality
The property is found within walking distance of the Asda and Tesco superstores along with numerous other retail outlets found along the high street, there are schools for all ages within walking distance, healthcare and sports facilities including the West Park Leisure Centre and adjoining playing fields, excellent transport links include J25 of the M1, Long Eaton train station, East Midlands Airport and the A52 to Nottingham and Derby.
Tenure - Freehold
Council Tax Band B £1,758
Partner - Emma Cavers
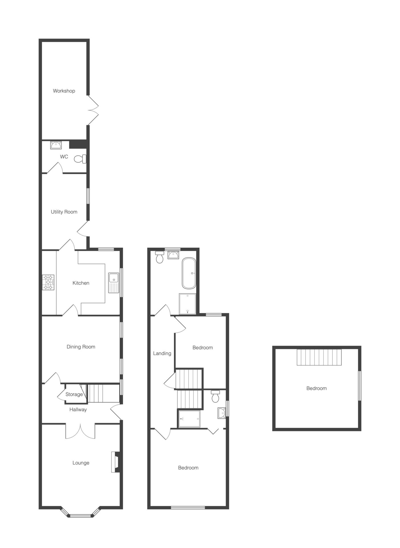
Entrance Hall
UPVC front entrance door and window, stairs to the first floor landing, radiator, door to the understairs storage and doors to
Lounge 15' 2" x 12' 1" (4.62m x 3.68m)
UPVC double glazed bay window to the front, gas fire with Adam style surround, picture rail, ceiling rose.
Dining Room 12' 2" x 12' 1" (3.71m x 3.68m)
UPVC double glazed window x2, radiator.
Kitchen 11' 9" x 9' 6" (3.58m x 2.90m)
Grey - high gloss, self closing, wall, base and drawer units with work surface over, stainless steel sink and drainer with mixer tap over, tiled walls and splashbcaks, gas central heating boiler, plumbing for dishwasher, plinth heater, space for a range cooker, spotlights, x2 double glazed windows and door to
Utilty Room 12' 3" x 7' 7" (3.73m x 2.31m)
Appliance space, plumbing for automatic washing machine, built-in storage cupboard, tiled floor, UPVC double glazed window and rear exit door, spotlights, radiator, breakfast bar and door to
WC
Low flush w.c, pedestal wash hand basin, splashbacks, tiled floor, radiator, spotlights, extractor fan.
Landing
Radiator, storage cupboard, door to bedroom three and doors to
Bedroom One 12' 1" x 12' 1" (3.68m x 3.68m)
UPVC double glazed window, radiator and door to
En-suite
Walk-in shower cubicle with electric shower, low flush w.c, sink, tiled walls and splashbacks, chrome heated towel rail, spotlights.
Bedroom Two 9' 5" x 9' 3" (2.87m x 2.82m)
UPVC double glazed window, radiator, built-in wardrobe.
Bathroom 10' 4" x 7' 2" (3.15m x 2.18m)
A four piece bathroom including a free standing bath, a large walk-in shower cubicle with shower from the mains with a waterfall shower head and a hand held shower head, tiled walls and splashbacks, spotlights, chrome heated towel rail, low flush w.c, pedestal wash hand basin, UPVC double glazed window.
Bedroom Three 13' 6" x 12' 8" (4.11m x 3.86m)
Storage to the eaves, radiator, UPVC double glazed window.
Disclaimer
In accordance with current legal requirements, all prospective purchasers are required to undergo an Anti-Money Laundering (AML) check. An administration fee of £40 per property will apply. This fee is payable after an offer has been accepted and must be settled before a memorandum of sale can be issued.
Need a mortgage?
We work with Mason Smalley, a 5-star rated mortgage brokerage with dedicated advisors handling everything on your behalf.
Can't find what you are looking for?
Speak with your local agent