• Asking price

    £170,000 Offers Over
  • Bathrooms

    1

  • Bedrooms

    2

Desirable 2-bed Coach House in walking distance to town centre. Modern kitchen, utility room, integral garage, GCH/DG, no upward chain. Ample parking space and well-maintained exterior. Freehold.

Description

Set in a desirable location within walking distance to Stapleford town centre, this charming 2-bedroom terraced Coach House presents an ideal opportunity for those seeking a convenient and low-maintenance lifestyle. The property boasts two generously sized double bedrooms, a modern kitchen complete with built-in appliances, a separate utility room, and the added benefit of gas central heating ensuring warmth and comfort throughout. Double glazing enhances the efficiency of the home, while the convenience of an integral garage provides valuable storage space. With the property offered with no upward chain, viewings are available seven days a week, allowing potential buyers the chance to explore this delightful home at their convenience.

Outside, a tarmac driveway leads to the integral garage via an up and over door, which also has door from the hallway, offering ample parking space for vehicles, while a further allocated parking space to the rear of the property provides additional convenience. The well-maintained exterior not only adds to the overall kerb appeal of the Coach House but also enhances the functionality of the space, allowing for easy access and practicality for residents. Whether enjoying the peaceful surroundings or taking advantage of the excellent local amenities nearby, the outdoor area of this property provides a versatile and welcoming environment for homeowners to relax and entertain in. Don't miss the opportunity to make this well-appointed Coach House your next home and experience the benefits of modern living in a convenient location.

Tenure - Freehold
Council Tax Band A
Partner - Emma Cavers

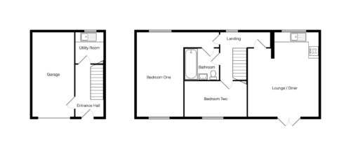
Entrance Hall
Composite front entrance door, stairs to the first floor landing, door to the garage and door to

Utilty Room 5' 7" x 6' 3" (1.70m x 1.91m)
Base cupboard and work surface, stainless steel sink and drainer with mixer tap over, tiled walls and splash backs, gas central heating boiler, plumbing for automatic washing machine, UPVC double glazed window to the rear

Landing
UPVC double glazed window to the rear, spot lights and doors to

Lounge/Kitchen 14' 8" x 11' 7" (4.47m x 3.53m)
Juliet balcony, spotlights, TV point and open to

Kitchen/Lounge 9' 8" x 5' 6" (2.95m x 1.68m)
Wall, base and drawer units with work surface over, stainless steel sink and drainer unit swan mixer tap over, tiled walls and splash backs, integrated oven, electric hob and extractor hood over, UPVC double glazed window to the rear

Bedroom One 17' 6" x 9' 9" (5.33m x 2.97m)
UPVC double glazed window to the front and rear, radiator, TV and telephone point

Bedroom Two 12' 5" x 7' 8" (3.78m x 2.34m)
UPVC double glazed window to the front, over stairs storage cupboard

Bathroom 6' 2" x 7' 6" (1.88m x 2.29m)
A white three piece suite comprising panelled bath with shower from the mains, low flush w.c, pedestal wash hand basin, tiled walls and splash backs, chrome heated towel rail, spotlights and extractor fan.

Disclaimer
In accordance with current legal requirements, all prospective purchasers are required to undergo an Anti-Money Laundering (AML) check. An administration fee of £40 per property will apply. This fee is payable after an offer has been accepted and must be settled before a memorandum of sale can be issued.

Floorplan

Need a mortgage?

We work with Mason Smalley, a 5-star rated mortgage brokerage with dedicated advisors handling everything on your behalf.

Can't find what you are looking for?

Speak with your local agent