• Asking price

    £400,000
  • Bathrooms

    1

  • Bedrooms

    4

An extended and well-maintained, detached family home situated on a quiet close on the fringes of Oakham - Offered with No Onward Chain.

Description

Nestled in a tranquil close on the outskirts of Oakham, this beautifully extended four-bedroom detached family home effortlessly blends timeless charm with modern comforts. Dating back to circa 1970 and cherished by the same family for three decades, this residence offers a rare opportunity to own a property in a prime location, close to excellent schooling.

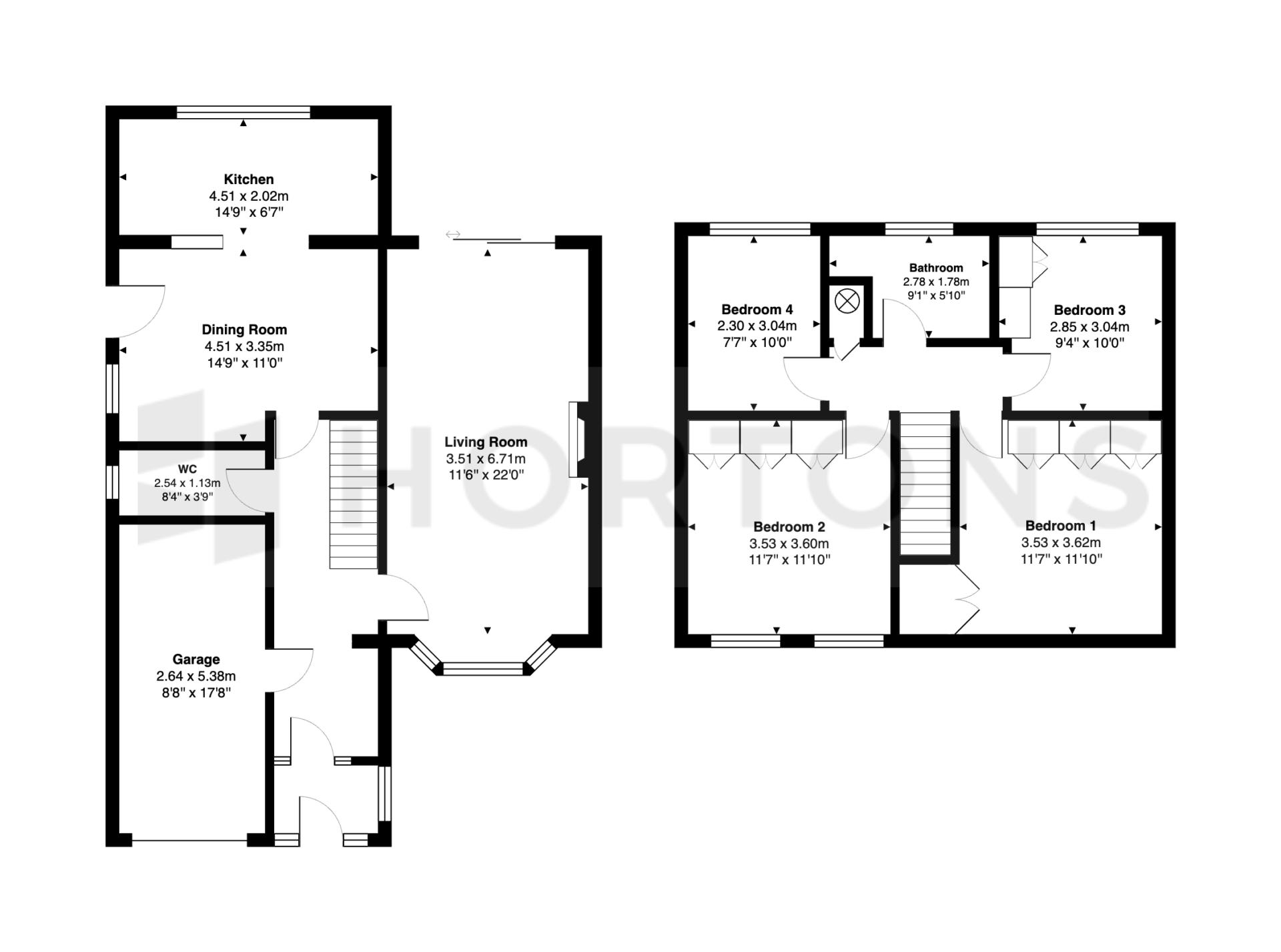
Begin your journey through the enclosed porch into the generously proportioned entrance hall, guiding you to the first floor via a staircase or exploring the ground floor with its various rooms and garage access. The living room, to the right, welcomes natural light through a bay window and sliding patio doors, creating a warm, inviting space extending an impressive 22ft, centred around a gas fireplace.

Continuing through the entrance hall, past the convenient (and recently refitted) WC, the heart of family life unfolds in the open Kitchen/Diner. Adorned with oak flooring, the dining area accommodates an 8-seat dining table and dresser. The removal of the original exterior wall has seamlessly connected the kitchen which is fitted with a matching range of base and wall-mounted cabinets and drawers, ample worktop space, a fitted fridge/freezer, dishwasher, and Siemens oven and hob.

Venturing upstairs reveals four well-proportioned bedrooms and the family bathroom. The first two bedrooms, overlooking the front aspect, boast fitted wardrobes. Bedrooms three and four offer peaceful views of the rear garden, with the fourth bedroom currently serving as a versatile home office. The family bathroom showcases a modern four-piece suite, complemented by contemporary tiling, comprising a shower enclosure, WC, bidet, and vanity basin.

Beyond the interior, the property's exterior is equally charming. Elevated from the road, a block-paved driveway leads to the garage, flanked on either side by easy-to-maintain slate borders interspersed with colourful heather and two mature trees, enhancing the property's kerb appeal. A gate to the side opens to the sunny, south-facing rear garden, fully enclosed by timber fencing. The garden unfolds with a lush lawn, pretty flower borders, a sizable patio seating area, and a delightful summer house – the perfect setting for outdoor enjoyment and relaxation.

In short - with its well-maintained interiors, functional layout, and charming gardens, this residence is a testament to enduring simplicity and the 30-year legacy of family ownership adds a personal touch to every corner. If you're seeking a straightforward and inviting home, this wonderful home on Dee Close is ready to embrace its next chapter of family life.

A COMMENT FROM OUR VENDORS

“This has been a great house in a friendly and quite residential area. We have enjoyed 30 years in the house and take with us wonderful memories.”

THE FINER DETAILS

Tenure – Freehold.

Energy Rating – TBC

Council Tax Band – D. (Rutland County Council)

Direction of Garden – South-South/West.

Loft Space – Part Boarded.

Mains Services – Gas, Water, Electricity, Drainage.

No Onward Chain.

VIEWING ARRANGEMENTS

By appointment with Hortons partner – Tom Sturton

Disclaimer
In accordance with current legal requirements, all prospective purchasers are required to undergo an Anti-Money Laundering (AML) check. An administration fee of £40 per property will apply. This fee is payable after an offer has been accepted and must be settled before a memorandum of sale can be issued.

Floorplan

Need a mortgage?

We work with Mason Smalley, a 5-star rated mortgage brokerage with dedicated advisors handling everything on your behalf.

Can't find what you are looking for?

Speak with your local agent