• Asking price

    £210,000 Offers Over
  • Bathrooms

    1

  • Bedrooms

    2

Impressive living space with direct access to an attractive rooftop garden. A modern upside down home offering two double bedrooms, superb open plan living, parking, a small yard and no upward chain.

Description

An impressive amount of living space with direct access to an attractive rooftop garden. Situated in the heart of a sought after estate, this modern, contemporary upside down home offers two generous double bedrooms and superb open plan living. The kitchen, dining and sitting areas blend seamlessly, complemented by a Juliet balcony overlooking the estate, while doors lead out to a large, sun soaked roof terrace ideal for outdoor dining. Further benefits include a carport, an additional allocated parking space, a small yard area and the advantage of no upward chain, making this a ready to move into home.

Accommodation summary - Entrance hall, two bedrooms, family bathroom, open plan living/dining/kitchen, roof garden.

Location - The estate features plenty of open spaces for dog walking and play areas. Nearby, you’ll find a pub, an M&S garage, Costa, and McDonald's. It is located on the outskirts of Oakham, a popular market town with a mix of high-street shops, independent boutiques, and a variety of restaurants and cafes for all tastes. Oakham is well connected to Leicester and Peterborough, boasting its own train station and regular bus services to surrounding villages and towns. Just over a 5-minute drive away is Rutland Water, which offers activities like recreational sports, bird watching, and relaxing family days out.

Agents note - An annual charge is paid to Oakham Heights Residents Management Company for the maintenance and upkeep of the common areas. We are advised that the current charge is £166.15 per property.

Disclaimer
In accordance with current legal requirements, all prospective purchasers are required to undergo an Anti-Money Laundering (AML) check. An administration fee of £40 per property will apply. This fee is payable after an offer has been accepted and must be settled before a memorandum of sale can be issued.

Disclaimer

In accordance with current legal requirements, all prospective purchasers are required to undergo an Anti-Money Laundering (AML) check. An administration fee of £40 per property will apply. This fee is payable after an offer has been accepted and must be settled before a memorandum of sale can be issued.

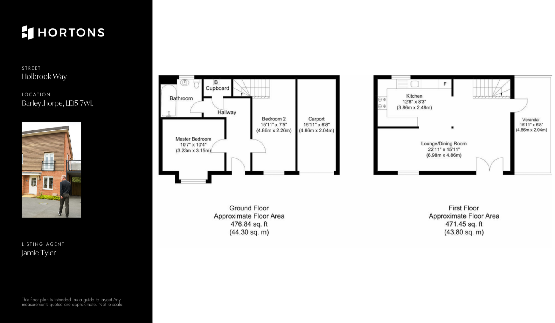
Floorplan

EPC

Need a mortgage?

We work with Mason Smalley, a 5-star rated mortgage brokerage with dedicated advisors handling everything on your behalf.

Can't find what you are looking for?

Speak with your local agent