King Henry Chase

  • Peterborough
  • PE3 9XE
  • Asking price

    £280,000
  • Bathrooms

    2

  • Bedrooms

    3

Beautifully presented three bedroom townhouse in the sought-after King Henry Chase. Close to Peterborough City Hospital, schools, parks & local amenities—perfect for families seeking modern living.

Description

Hortons are proud to present this beautifully presented three-bedroom townhouse, perfectly positioned within the highly sought-after King Henry Chase development.

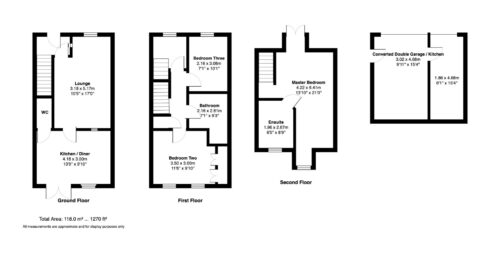
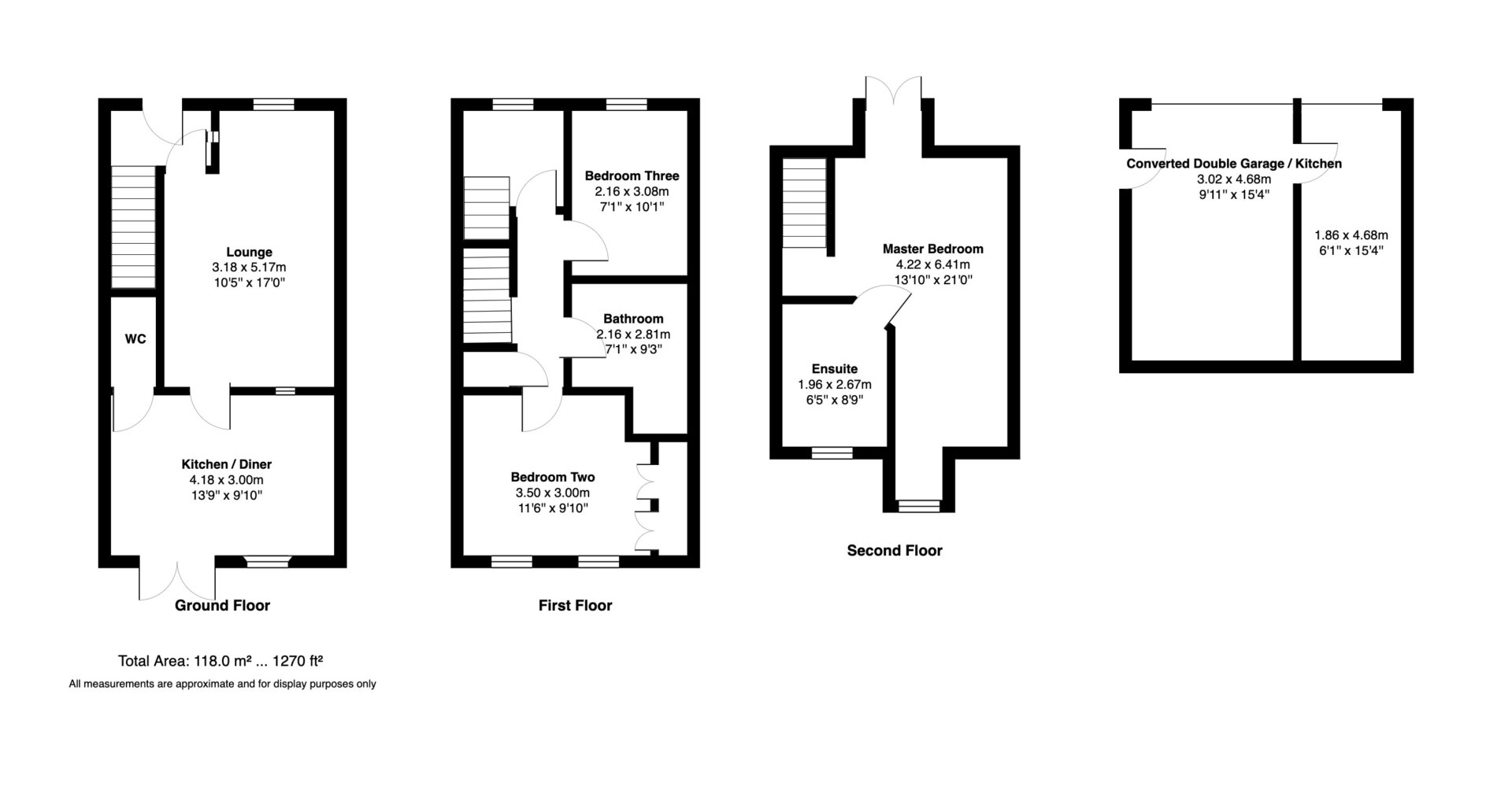
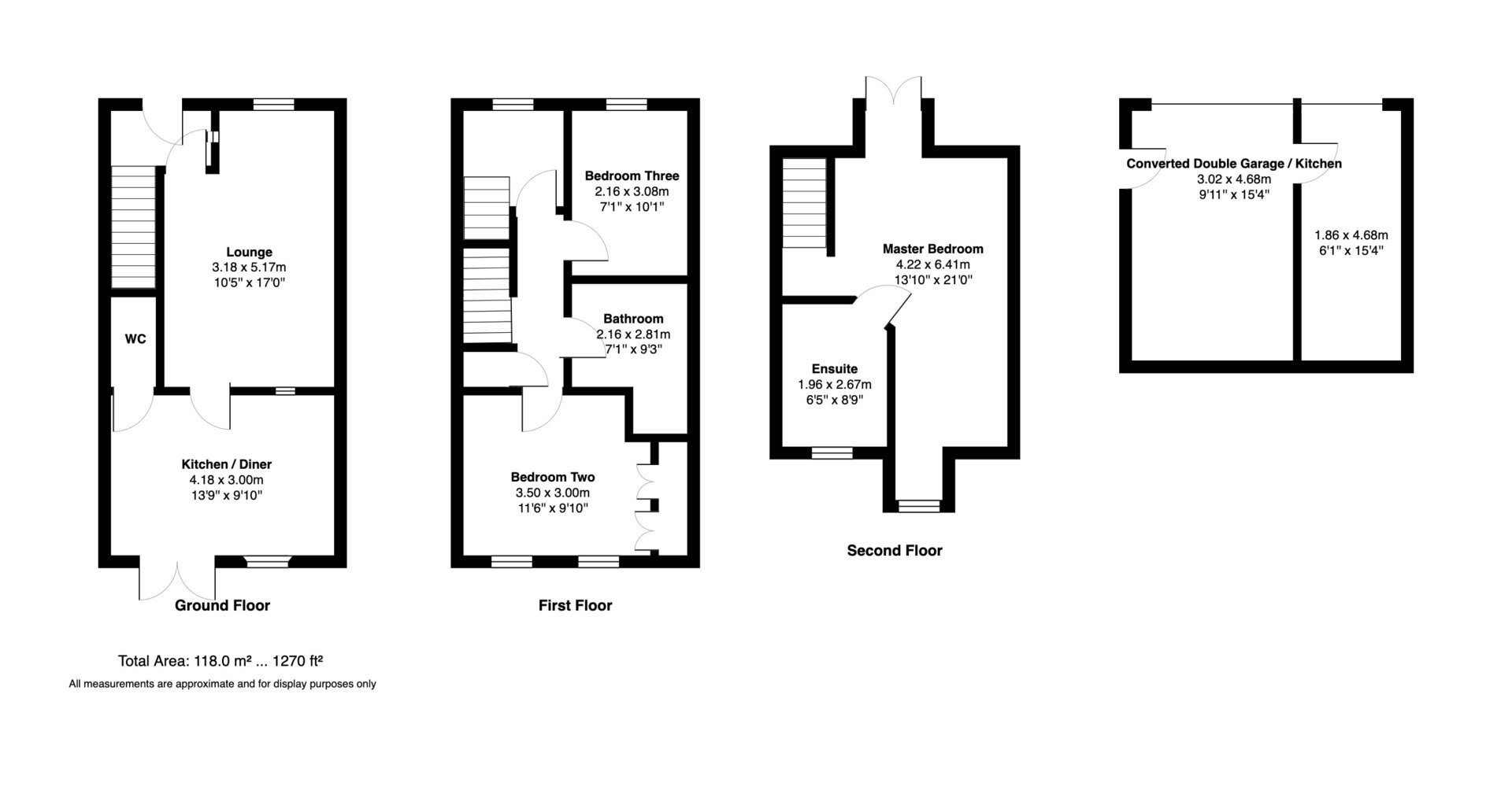
The ground floor offers an inviting entrance hall, a spacious lounge with understairs storage, a WC, and a modern kitchen-diner with French doors opening onto the rear garden.

On the first floor, there is a generous double bedroom with fitted wardrobes, a third bedroom, and a stylish four-piece family bathroom. The top floor features a private master suite with Velux windows overlooking the rear aspect and a contemporary ensuite shower room.

Outside, the property boasts a fully enclosed rear garden and a converted double garage, now offering a versatile kitchen unit and office space—ideal for those working from home or seeking additional entertaining space.

An excellent opportunity to acquire a modern, flexible family home in one of Peterborough’s most desirable locations.

King Henry Chase is a highly desirable and family-friendly development of Peterborough. Families benefit from a choice of well-regarded local schools, nearby play parks and open green spaces for weekend walks and outdoor activities.

Peterborough City Hospital is just a short distance away, making this an ideal spot for healthcare professionals or families seeking everyday convenience. Excellent transport links, including easy access to the A47, A15, city centre and the train station—with direct services to London in under an hour.

Lounge

Kitchen Diner

WC

Master Room

En-suite

Bedroom Two

Bedroom Three

Bathroom

Garage Conversion

Disclaimer

In accordance with current legal requirements, all prospective purchasers are required to undergo an Anti-Money Laundering (AML) check. An administration fee of £40 per property will apply. This fee is payable after an offer has been accepted and must be settled before a memorandum of sale can be issued.

Floorplan

EPC

Need a mortgage?

We work with Mason Smalley, a 5-star rated mortgage brokerage with dedicated advisors handling everything on your behalf.

Can't find what you are looking for?

Speak with your local agent