• Asking price

    £300,000 OIRO
  • Bathrooms

    1

  • Bedrooms

    3

Three bed semi on Reindeer Road with lounge, kitchen, garage, driveway, south facing garden and field views. No chain. Near amenities, schools, Ventura Retail Park and Drayton Manor.

Description

A fantastic opportunity to purchase this three bed semi detached home on the sought after Reindeer Road, Fazeley. This comes with bags of potential to really make it your own, being sold with no upward chain. In brief the property comprising of porch, lounge, kitchen, three good sized bedrooms and bathroom. Further more, benefitting from a south facing rear garden with stunning field views, garage and driveway.

Located close to local amenities, transport links, close proximity to the Ventura Retail Park, with school catchment and Drayton Manor.

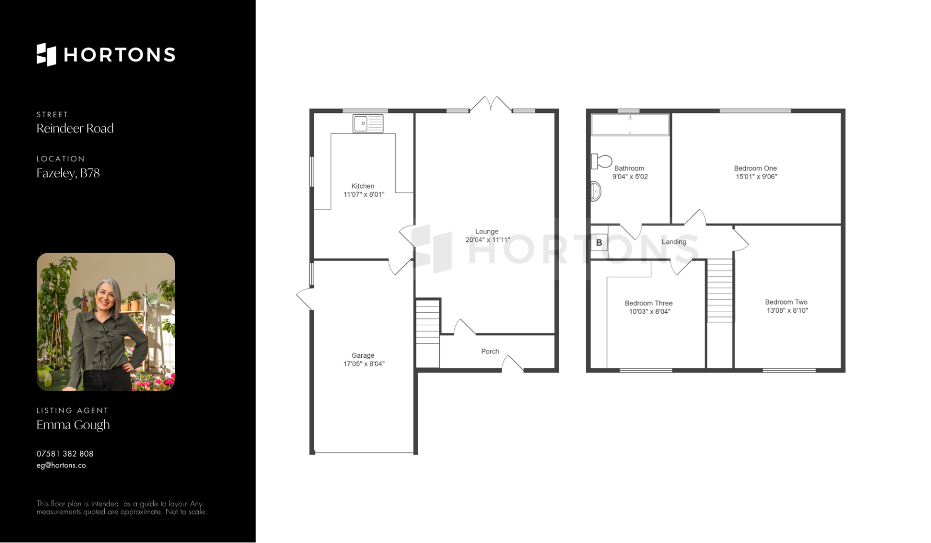
Porch
Having a spacious Upvc porch, with carpeted flooring, carpeted stairs, radiator light fitting to the ceiling, window to the read and door giving access to lounge.

Lounge 20' 4" x 11' 11" (6.20m x 3.63m)
Having carpeted flooring, radiator, light fittings to the ceiling, Upvc patio doors giving access to the rear garden, and door to the side giving access to the kitchen.

Kitchen 11' 7" x 8' 1" (3.53m x 2.46m)
Having tiled flooring, a range of fitted wall and base unites with work surface over, integrated oven and hob with extractor over, stainless steel sink with drainer and mixer tap, tiled splashback, window to the rear and the side elevation with fitted electric blinds, radiator, door to the front giving access to the integral garage and spotlights to the ceiling.

Landing
Having carpeted stairs, light fitting to the ceiling, access to loft hatch, airing cupboard housing boiler, doors giving access to - three bedrooms and bathroom.

Bedroom One 15' 1" x 9' 6" (4.60m x 2.90m)
Having carpeted flooring, radiator, light fitting to wall and ceiling and window to the rear elevation.

Bedroom Two 13' 8" x 8' 1" (4.17m x 2.46m)
Having carpeted flooring, radiator, over the stair storage, window to the front elevation and light fitting to the ceiling.

Bedroom Three 10' 3" x 8' 4" (3.12m x 2.54m)
Having carpeted flooring, radiator, fitted storage, window to the front elevation and light fitting to the ceiling.

Bathroom 9' 4" x 5' 2" (2.85m x 1.58m)
Adapted shower room, with non slip flooring, part tiled walls, radiator, shower, low level flush w.c, sink with tiled splashback, obscured window to the rear and light fitting to the ceiling.

Disclaimer
In accordance with current legal requirements, all prospective purchasers are required to undergo an Anti-Money Laundering (AML) check. An administration fee of £40 per property will apply. This fee is payable after an offer has been accepted and must be settled before a memorandum of sale can be issued.

The measurements indicated are supplied for guidance and illustration purposes only and may be incorrect. Potential buyers are advised to re check measurements for clarity. Hortons have not tested any apparatus, equipment, fixtures and fittings and potential buyers are advised to check the condition of any appliances and discuss with their legal representative. It is advised to seek legal advice on all concerns surrounding the title, boundaries and other related matters.

Disclaimer

In accordance with current legal requirements, all prospective purchasers are required to undergo an Anti-Money Laundering (AML) check. An administration fee of £40 per property will apply. This fee is payable after an offer has been accepted and must be settled before a memorandum of sale can be issued.

Floorplan

Need a mortgage?

We work with Mason Smalley, a 5-star rated mortgage brokerage with dedicated advisors handling everything on your behalf.

Can't find what you are looking for?

Speak with your local agent