• Asking price

    £360,000 Offers in Excess
  • Bathrooms

    2

  • Bedrooms

    3

Description

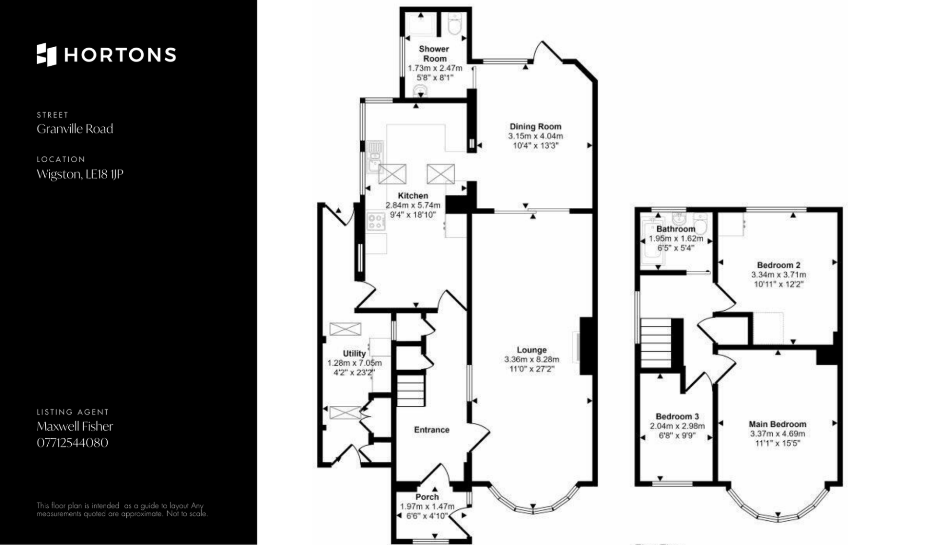
Situated within a sought-after locale, this extended three-bedroom semi-detached house exudes a timeless charm and well-appointed living spaces. Boasting a private driveway and garage, this property offers convenient and secure parking for residents. The property is located on a coveted road renowned for its tranquil surroundings yet in close proximity to a variety of local amenities, making it an ideal choice for those seeking both convenience and tranquillity.

Upon entering the home, residents are greeted by a spacious entrance porch and hallway leading to a reception room that radiates warmth and welcomes guests with its inviting ambience. The ground floor of the property features an extended kitchen that is thoughtfully designed to cater to the needs of modern living, providing ample space for meal preparation and entertaining. Additionally, a ground floor shower room adds to the convenience of the property, offering a practical and comfortable amenity for residents and visitors alike. A dining room with roof lantern overlooks the rear garden. An added utility room can be accessed from the kitchen and provides access between the front and rear of the property.

Venturing upstairs, residents will find three well-proportioned bedrooms, each offering a peaceful sanctuary for rest and relaxation. The staircase leading to the loft space provides an opportunity for further development or additional storage, allowing residents to optimise the use of the property to suit their individual requirements.

To the rear of the property lies a south-facing garden, bathed in natural light and providing a serene outdoor space for residents to enjoy. The garden adds an additional dimension to the property, creating a seamless transition between indoor and outdoor living spaces.

Disclaimer
In accordance with current legal requirements, all prospective purchasers are required to undergo an Anti-Money Laundering (AML) check. An administration fee of £40 per property will apply. This fee is payable after an offer has been accepted and must be settled before a memorandum of sale can be issued.

Floorplan

Need a mortgage?

We work with Mason Smalley, a 5-star rated mortgage brokerage with dedicated advisors handling everything on your behalf.

Can't find what you are looking for?

Speak with your local agent