Let Agreed

  • Nottingham
  • NG10 1BW
  • Asking price

    £1,300 pcm
  • Bathrooms

    2

  • Bedrooms

    3

An Immaculate & large 3-bed semi-detached house with contemporary design, spacious interior, en-suite master, natural light, storage, parking, and private garden. Close to amenities and schools.

Description

Nestled conveniently off the main road, this immaculate 3 double bedroom semi-detached house offers a perfect blend of contemporary living and functional design. The property, refurbished and extended three years ago and used to be the old St John's ambulance station. It boasts a spacious interior, including a kitchen with built-in appliances, an en-suite in the master bedroom, and a ground floor WC for added convenience. Large windows flood the home with natural light, creating a warm and inviting ambience throughout. The property features a large landing with additional storage, ideal for keeping the space clutter-free. Residents will appreciate the proximity to local amenities and facilities as well as the convenience of having parking for two cars. The property is being sold with No Upward Chain. Viewings are available seven days a week to experience this charming property firsthand.

Stepping outside, the property is a hidden gem set back from the road down a private drive. An electric sliding gate welcomes you onto a block paved driveway providing parking for two cars, ensuring convenience and security. The rear garden offers a relaxing retreat, complete with a lush lawn and a decked area ideal for alfresco dining or simply unwinding surrounded by greenery. The garden is privately enclosed by fenced and walled boundaries. This property presents a rare opportunity to own a versatile home that seamlessly combines modern comforts with outdoor serenity.

The property is found within walking distance of the Asda and Tesco superstores along with numerous other retail outlets found along the high street, there are schools for all ages within walking distance, healthcare and sports facilities including the West Park Leisure Centre and adjoining playing fields, excellent transport links include J25 of the M1, Long Eaton train station, East Midlands Airport and the A52 to Nottingham and Derby.

Tenure - Freehold
Council Tax Band B
Partner - Emma Cavers

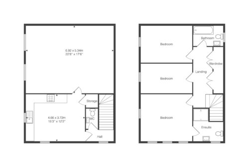
Kitchen 16' 7" x 12' 3" (5.05m x 3.73m)
Navy Blue, wall, base and drawer units with work surface over and splashbacks, built - in fridge/freezer, washing machine, dishwasher, oven, induction hob and extractor hood over and wine fridge. x2 UPVC double glazed windows, spotlights, laminate floor, composite front entrance door, radiator, door to inner hallway, door to understairs storage cupboard and door to lounge.

Lounge 12' 8" x 17' 7" (3.86m x 5.36m)
x2 UPVC double glazed windows, laminate floor, x2 radiators, spotlights, TV point.

Inner Hallway
UPVC double glazed window, stairs to the first floor landing, spotlights and door to WC

WC
Low flush, sink with splashbacks, laminate floor, extractor fan, spotlights.

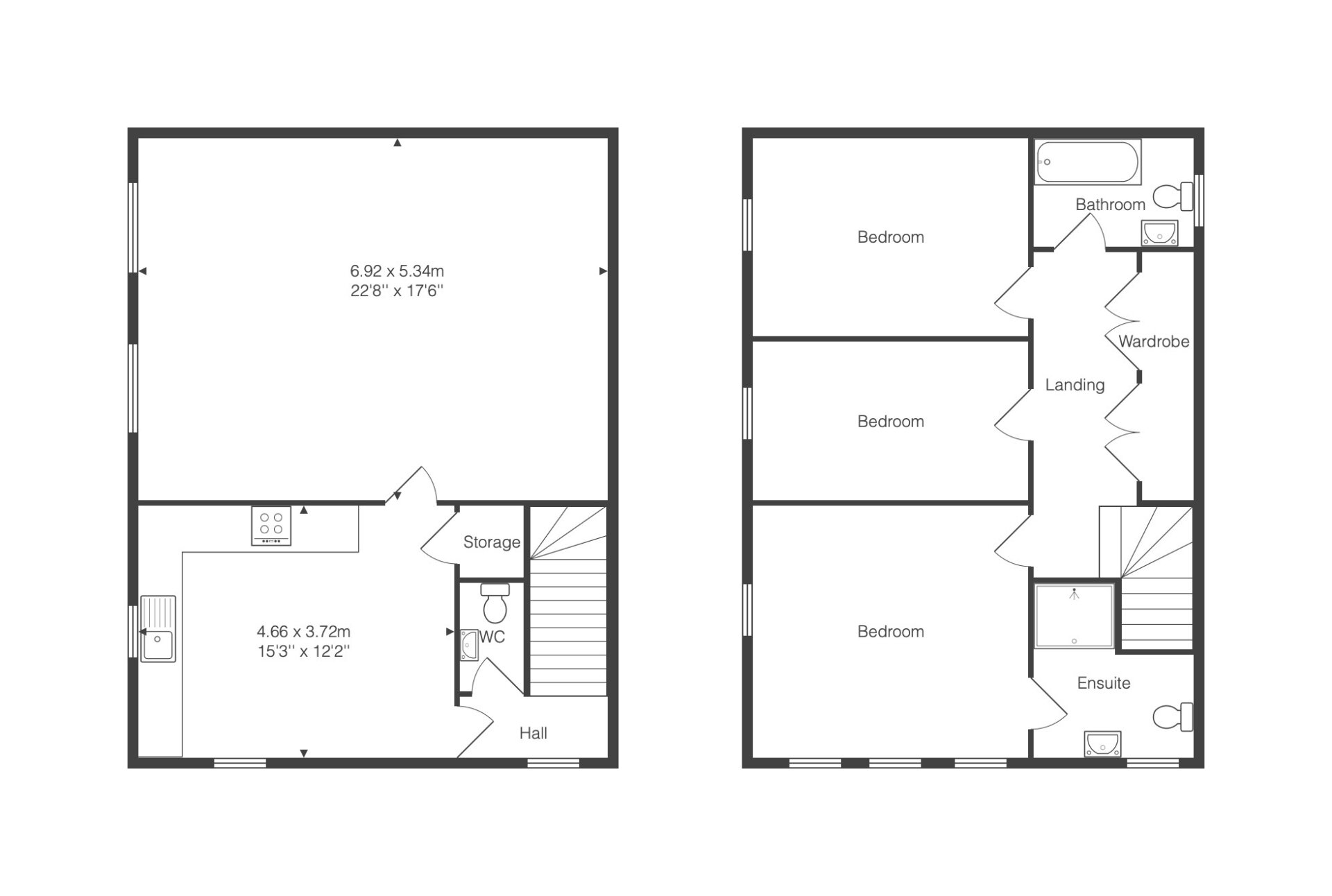
Landing
Velux window x2, two large storage cupboards currently used as wardrobes, spotlights and doors to

Bedroom One 15' 4" x 12' 3" (4.67m x 3.73m)
x3 UPVC double glazed windows, spotlights, Velux window and vaulted ceiling, radiator and door to

En-Suite
Walk-in shower cubicle with shower from the mains having a waterfall shower head and a hand held shower head, low flush w.c, sink with storage, laminate floor, velux window, tiled walls and splashbacks, chrome heated towel rail.

Bedroom Two 9' 7" x 13' 5" (2.92m x 4.09m)
Velux window, radiator, spotlights

Bedroom Three 13' 3" x 7' 8" (4.04m x 2.34m)
Velux window, radiator, spotlights

Bathroom 7' 9" x 5' 3" (2.36m x 1.60m)
panelled bath with shower from the mains having a hand held shower head and a waterfall shower head, low flush w.c, sink with storage, tiled floor, spotlights, velux window, chrome heated towel rail.

Disclaimer
In accordance with current legal requirements, all prospective purchasers are required to undergo an Anti-Money Laundering (AML) check. An administration fee of £40 per property will apply. This fee is payable after an offer has been accepted and must be settled before a memorandum of sale can be issued.

Floorplan

Can't find what you are looking for?

Speak with your local agent