• Asking price

    £450,000
  • Bathrooms

    2

  • Bedrooms

    5

Description

Hortons are pleased to present for sale this exceptional five-bedroom detached family home, situated in the sought-after market town of Lutterworth.

This property has undergone an extensive programme of refurbishment and extension, completed to impeccable standards with meticulous attention to detail and great taste. It offers the perfect opportunity to move straight in and make it your own.

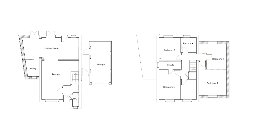
Upon entering, you are welcomed by an entrance hall that provides access to a convenient WC, the staircase, and the lounge. The lounge flows seamlessly into a spacious kitchen diner, featuring a well-equipped kitchen with integrated dishwasher, double ovens, full-height fridge and freezer, and discreet bin storage. A separate utility room adds to the practicality of the space. The kitchen diner boasts bi-folding doors that open onto the rear garden patio, creating an ideal setting for indoor-outdoor living.

Upstairs, the property comprises five bedrooms, four of which are equipped with fitted wardrobes. The master bedroom includes an ensuite shower room, offering a private retreat. The additional bedrooms are well-proportioned, providing ample space for a growing family.

Outside, the front of the property features off-road parking leading to a single garage. The rear garden is mature and mostly laid to lawn, with a patio area perfect for dining and entertaining.

The property is exceptionally light and airy, and its pristine finish gives it the feel of a completely new home, while being nestled in an established and highly desirable area. This combination offers the best of both worlds.

To fully appreciate the quality and charm of this property, an internal viewing is essential.

Room dimensions/ accomodation summary:

Entrance Hall
WC
Lounge (max) 4.73 x 5.07
Kitchen diner - 6.65 x 3.13
Utility room
Bedroom One -
Bedroom Two -
Bedroom Three - 3.4 x 3.51
Bedroom Four - 3.35 x 2.55
Bedroom Five - 2.59 x 2.06
Bathroom - 1.98 x 2

Disclaimer
In accordance with current legal requirements, all prospective purchasers are required to undergo an Anti-Money Laundering (AML) check. An administration fee of £40 per property will apply. This fee is payable after an offer has been accepted and must be settled before a memorandum of sale can be issued.

Floorplan

Need a mortgage?

We work with Mason Smalley, a 5-star rated mortgage brokerage with dedicated advisors handling everything on your behalf.

Can't find what you are looking for?

Speak with your local agent